家在深圳,真实业主生活圈_房网论坛

0

|

6

鸿荣源珈誉府75-181平官方户型图

沙井梦碎了
沙井梦碎了

积分:-

注册时间:-

主楼
2023-06-21 09:43:20 来自Android手机客户端
标签: 点击标签查看相关内容

鸿荣源珈誉府75-181平官方户型图

进度很快啊,说月底要开盘了

分享
0
沙井梦碎了
沙井梦碎了

积分:-

注册时间:-

沙发
2023-06-21 09:43:40 来自Android手机客户端
94平





97
沙井梦碎了
沙井梦碎了

积分:-

注册时间:-

板凳
2023-06-21 09:44:19 来自Android手机客户端
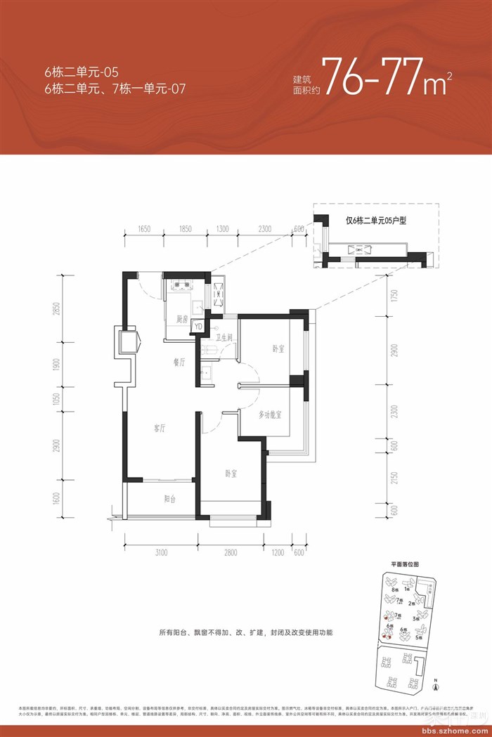
76-77



沙井梦碎了
沙井梦碎了

积分:-

注册时间:-

地板
2023-06-21 09:45:16 来自Android手机客户端
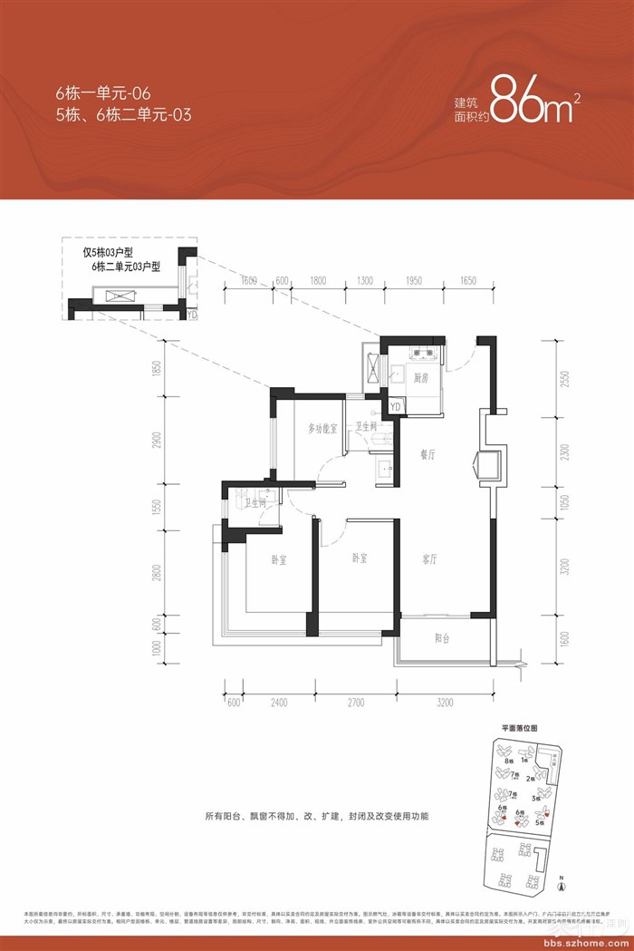
85-88







沙井梦碎了
沙井梦碎了

积分:-

注册时间:-

4楼
2023-06-21 09:45:48 来自Android手机客户端
181



梧桐细雨还在下雨
梧桐细雨还在下雨

积分:-

注册时间:-

5楼
2023-06-21 14:21:39
用户被禁言
日立中央空调
日立中央空调

积分:-

注册时间:-

6楼
2023-09-05 15:36:46
可以的
  • 插入图片

    支持一次选择9张图片上传(使用Ctrl、Shift选中);

    支持jpg、png、gif,单张图片不超过10M,png不超过1M,gif不超过300K。

    • 继续添加

  • 提到好友

3(16px)

楼主最近发表

相关帖子

    大家都在看

    下载家在深圳APP

    关注家在公众号