家在深圳,真实业主生活圈_房网论坛

0

|

10

悦章凤凰里84-128平户型图

西部传奇
西部传奇

积分:-

注册时间:-

主楼
2023-06-02 10:55:01
标签: 点击标签查看相关内容

悦章凤凰里84-128平户型图

看到户型图出来了,近期开展示,推出758套住宅,84-128平,4-5字头,7月开盘?

分享
0
西部传奇
西部传奇

积分:-

注册时间:-

沙发
2023-06-02 10:55:35
约84㎡三房两厅1.5卫



西部传奇
西部传奇

积分:-

注册时间:-

板凳
2023-06-02 10:57:37

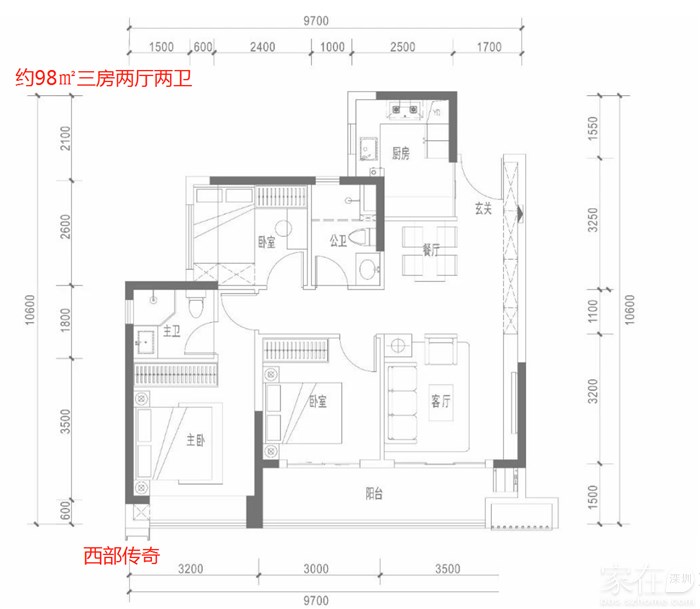
约98㎡三房两厅两卫


西部传奇
西部传奇

积分:-

注册时间:-

地板
2023-06-02 11:00:24
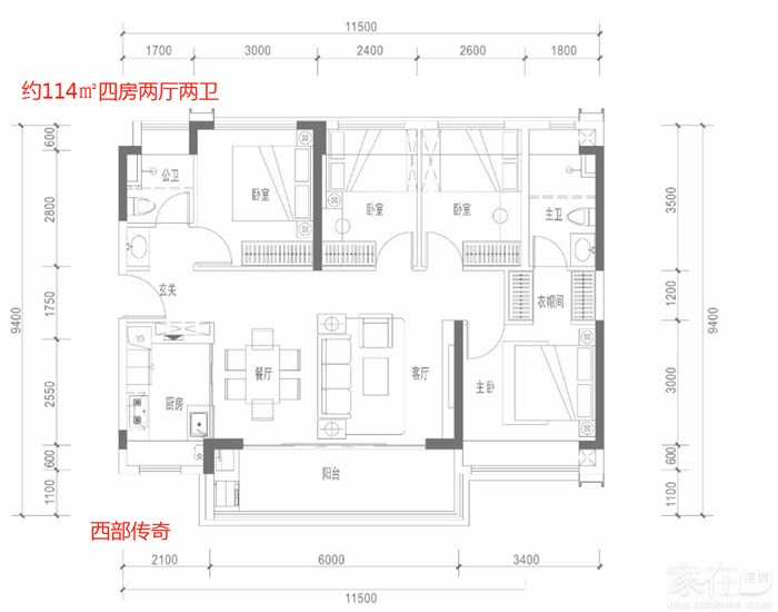
约114㎡四房两厅两卫

西部传奇
西部传奇

积分:-

注册时间:-

4楼
2023-06-02 11:02:22
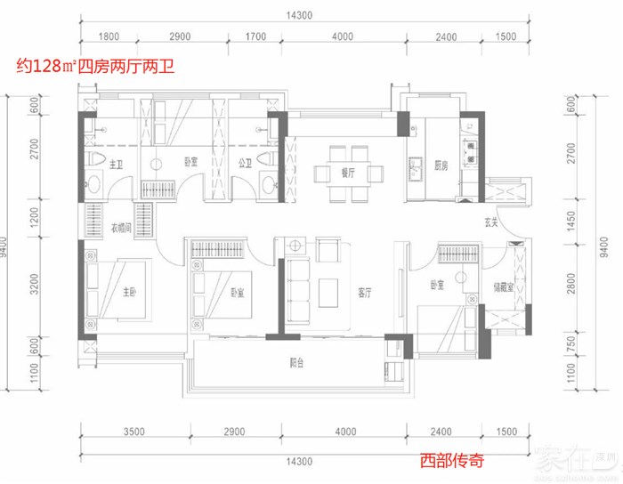
约128㎡四房两厅两卫

西部传奇
西部传奇

积分:-

注册时间:-

5楼
2023-06-02 11:04:02
中粮悦章·凤凰里项目占地3.26万㎡,总建面21.2万㎡,共规划有7栋住宅,4栋商品房、3栋保障房,33-34层。总户数1426户,其中可售商品房758套、保障房668套,车位1564个,容积率4.98。自带一所12班幼儿园和一所36班九年制学校及公交首末站3200㎡。

家在星空
家在星空

积分:-

注册时间:-

6楼
2023-06-02 11:26:01 来自Android手机客户端


dzcdz
dzcdz

积分:-

注册时间:-

7楼
2023-06-03 10:04:32
凤凰里一期,几千套房开盘当天全部售完,惊动中粮集团董事长亲临凤凰里询问是啥情况
江忠平992964_微信
江忠平992964_微信

积分:-

注册时间:-

8楼
2023-06-07 09:32:36 来自Android手机客户端
大环境好,很多日光盘,如今大环境如此差,就难说
MelvinDeng
MelvinDeng

积分:-

注册时间:-

9楼
2023-06-07 09:46:21 来自Android手机客户端
被工业区包围的住宅
JerryCJW
JerryCJW

积分:-

注册时间:-

10楼
2023-06-26 09:29:24
7月1号开盘了



  • 插入图片

    支持一次选择9张图片上传(使用Ctrl、Shift选中);

    支持jpg、png、gif,单张图片不超过10M,png不超过1M,gif不超过300K。

    • 继续添加

  • 提到好友

3(16px)

楼主最近发表

相关帖子

    大家都在看

    下载家在深圳APP

    关注家在公众号