家在深圳,真实业主生活圈_房网论坛

0

|

19

爆全网!有参数户型图,鸿荣源珈誉府76-180平

bndwdhp
bndwdhp

积分:-

注册时间:-

主楼
2023-03-23 11:26:27 来自Android手机客户端
标签: 点击标签查看相关内容

爆全网!有参数户型图,鸿荣源珈誉府76-180平

等这个盘很久了,一直没看到有户型,户型终于来了,而且是看到有参数的

好心动有没有?



76平3房2厅1卫

主要位于6栋7栋,6栋2单元05/06/07/08户型,7栋1单元07/08户型

分享
0
bndwdhp
bndwdhp

积分:-

注册时间:-

沙发
2023-03-23 11:32:55 来自Android手机客户端
85平3房2厅2卫

主要位于3栋,7栋,8栋

3栋01/07户型,5栋07户型,7栋01/07户型,8栋0107户型



主要位于5栋,6栋,7栋

5栋02/03,6栋一单元02/03,6栋2单元02/03,7栋1单元05/06户型


bndwdhp
bndwdhp

积分:-

注册时间:-

板凳
2023-03-23 11:58:12 来自Android手机客户端
95平3房2厅2卫

位于5栋6栋

5栋016栋1单元01~07

bndwdhp
bndwdhp

积分:-

注册时间:-

地板
2023-03-23 12:01:34 来自Android手机客户端
95平3房2厅2卫

主要位于1栋,2栋,3栋,5栋,6栋,7栋,8栋

算主力户型

3栋02/03/05/06,5栋05/06,7栋0203,8栋03/05/06户型

bndwdhp
bndwdhp

积分:-

注册时间:-

4楼
2023-03-23 12:04:55 来自Android手机客户端
155平的4房2厅2卫

主要位于1栋2栋05单元

bndwdhp
bndwdhp

积分:-

注册时间:-

5楼
2023-03-23 12:06:39 来自Android手机客户端
181平5房2厅3卫

主要位于1栋2栋01单元

bndwdhp
bndwdhp

积分:-

注册时间:-

6楼
2023-03-23 12:27:42 来自Android手机客户端
鸿荣源珈誉府2280套

76-258套
85-710套
95-1058套
106-90套
154-85套
181-82套

主力户型85-95平,106-154-181估计会先卖完吧,看套数比较少
家在星空
家在星空

积分:-

注册时间:-

7楼
2023-03-23 12:30:12 来自Android手机客户端


赞同爆料

kens618
kens618

积分:-

注册时间:-

8楼
2023-03-23 13:56:05
户型没惊喜

嘻嘉嘉
嘻嘉嘉

积分:-

注册时间:-

9楼
2023-03-23 14:00:42
这户型。。。是惊吓吧
宝安湾
宝安湾

积分:-

注册时间:-

10楼
2023-03-23 16:54:35
没有106平的?
佳多寳
佳多寳

积分:-

注册时间:-

11楼
2023-03-23 23:40:48 来自Android手机客户端
95户型3.4开间 海岸城都不如…
聪6243216_微信
聪6243216_微信

积分:-

注册时间:-

12楼
2023-03-23 23:52:37 来自iPhone客户端
那是包含墙体的,去掉墙体只有3.2米的开间
引用11楼佳多寳的发言:
95户型3.4开间 海岸城都不如…
罗杰鱼鱼鱼
罗杰鱼鱼鱼

积分:-

注册时间:-

13楼
2023-03-24 14:44:50 来自iPhone客户端
这户型,吓到了
魁哥_Christian
魁哥_Christian

积分:-

注册时间:-

14楼
2023-03-24 15:00:46 来自iPhone客户端
这长条筷子户型,惊悚,迅速劝退
MelvinDeng
MelvinDeng

积分:-

注册时间:-

15楼
2023-03-24 15:28:51
位置差,近大马路,近天铁,噪音大,房型差
宝安湾
宝安湾

积分:-

注册时间:-

16楼
2023-03-24 17:18:21

找到了

引用10楼宝安湾的发言:
没有106平的?
小哼唧
小哼唧

积分:-

注册时间:-

17楼
2023-03-24 18:08:15 来自Android手机客户端
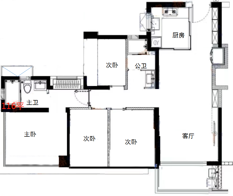
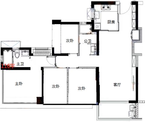
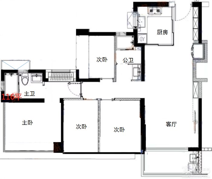
105改成116平?这个一下多了11平。多了好几十万。
引用宝安湾的发言:

找到了

引用10楼宝安湾的发言:
没有106平的?
lazing
lazing

积分:-

注册时间:-

18楼
2023-03-24 18:23:34 来自iPhone客户端
其实长条户型挺好的,开间大
A00小强先生
A00小强先生

积分:-

注册时间:-

19楼
2023-03-27 23:02:48 来自iPhone客户端
这个一看就是假的,借用其它楼盘的户型图,
  • 插入图片

    支持一次选择9张图片上传(使用Ctrl、Shift选中);

    支持jpg、png、gif,单张图片不超过10M,png不超过1M,gif不超过300K。

    • 继续添加

  • 提到好友

3(16px)

楼主最近发表

相关帖子

    大家都在看

    下载家在深圳APP

    关注家在公众号