家在深圳,真实业主生活圈_房网论坛

0

|

4

宝安凯旋城二期开工,进度帖

恒佳装饰李工
恒佳装饰李工

积分:-

注册时间:-

主楼
2023-12-01 19:56:36 来自Android手机客户端
标签: 点击标签查看相关内容

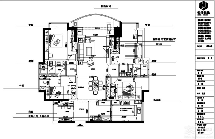
宝安凯旋城二期开工,进度帖

开工大吉

分享
0
恒佳装饰李工
恒佳装饰李工

积分:-

注册时间:-

沙发
2023-12-01 19:57:25 来自Android手机客户端
拆除后的砌墙







恒佳装饰李工
恒佳装饰李工

积分:-

注册时间:-

板凳
2023-12-04 19:00:49 来自Android手机客户端
水电进场中











恒佳装饰李工
恒佳装饰李工

积分:-

注册时间:-

地板
2023-12-31 11:18:48 来自Android手机客户端
水电完工

















恒佳装饰李工
恒佳装饰李工

积分:-

注册时间:-

4楼
2024-01-02 16:54:29 来自Android手机客户端
贴砖中,卫生间防水

















  • 插入图片

    支持一次选择9张图片上传(使用Ctrl、Shift选中);

    支持jpg、png、gif,单张图片不超过10M,png不超过1M,gif不超过300K。

    • 继续添加

  • 提到好友

3(16px)

楼主最近发表

相关帖子

    大家都在看

    下载家在深圳APP

    关注家在公众号