标签:
点击标签查看相关内容
完美厨房必备的6大要素!
你家的厨房完美吗?是不是有很多用着不舒服不如意的地方?今天来讲解一下完美厨房必须具备的六大要素,无论你是正打算装修还是已经入住,这篇文章都可以帮到你,快来做功课吧。
![]()
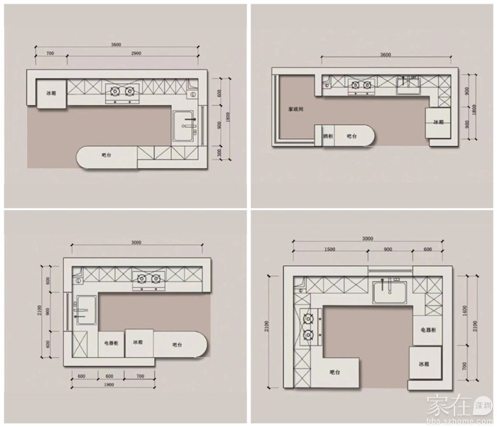
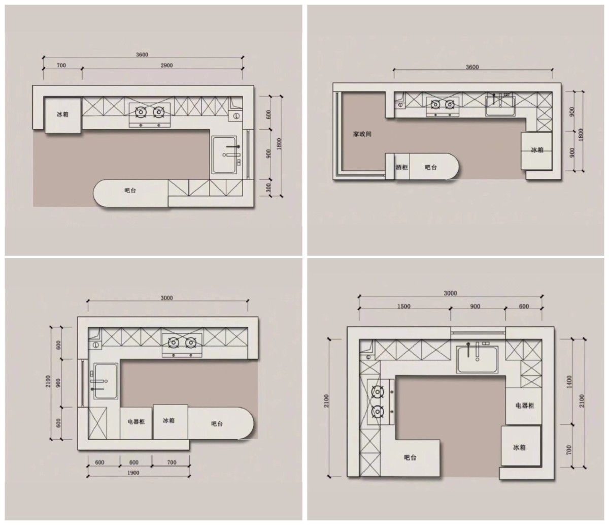
01厨房布局
很多业主问完美厨房的布局是二字型、L型还是U型?其实都不是,在不考虑空间限制的情况下,“U+1”也就是U型布局加上一字型的岛台,是最完美的厨房布局。当然“U+1”有很多的变种,例如说“L+1”或者是J型也都还不错。其次,带一个阳台的二字形的布局,由于可以分别设置灶台、操作台和水盆柜的高度,基本是小户型最优的布局。
![]()
02橱柜高度
完美橱柜的高度是多少?有人说台面的高度应该是身高除以二加五,有人说要做高低台,其实台面要三分高度才是最完美的,也是最舒服的。操作台的高度要在80到85公分,根据主厨的身高和臂展来做出调整,灶具本身由于有五公分的高度,所以灶台柜要比操作台低五公分,水盆柜要比操作台高十公分,才是用着最舒服的。三分台面很多人觉得不现实,其实刚才提到的带阳台的二字形布局就可以做到无错台三分,很多布局是可以通过设计来解决的,最重要的是你有没有这个意识。
![]()
03橱柜材质
完美橱柜的材质是什么?橱柜柜体必须有一定的防水跟防潮的能力,因此多层板做柜体优于颗粒板。古典风格门板有线型的,六面无缝的烤漆工艺是最好的选择,磨压工艺立体感差,而且不完全防水,尽量别用。现代风格平板柜门双饰面耐磨耐滑,是最好的选择。厨房毕竟是操作区,肤感材质柜门容易粘手印,高光材质柜门容易划伤,如果喜欢请用在其他空间,尽量不要用在厨房。
![]()
04厨房水槽和台面
厨房选择大单槽带活动的沥水篮,高抛式的抽拉龙头,基本是现代水槽形式的最优解。材质上304不锈钢的手工槽是颜值实用性的最优解。台上盆不推荐,台中盆对工艺的要求高,除非买的是大品牌的橱柜,不然不要选台下盆。台面选择岩板和石英石都可以,其他的材质不管你听过还是没有听过,都不要选。
![]()
05厨房照明
完美的厨房的灯光,首先环境光一定要有顶面的光源,虽然无法解决切菜炒菜的问题,但也一定要有,吊柜下的那一排灯带非常的重要,一定要贯穿整个的台面,这样切菜洗菜的时候才会有灯光,不会背光。操作台的灯光色温要选择冷光,冷光更容易让人精神集中,不容易切到手。
![]()
06厨房门
如果你家的门洞较小,玻璃平开门依然是最好的选择,密封好,防油烟。唯一要注意的是开抽烟机的时候要开一点窗户,以免厨房内部产生负压。如果你家的门洞比较大,一般是要选择推拉门的,推拉门优先选择吊轨推拉门如果偏爱地轨,就选择凸出来的地轨,轨道不要选择凹进去的,太难打扫卫生了。
以上就是关于完美厨房必备的六大要素的介绍,希望对您有帮助。
01厨房布局
很多业主问完美厨房的布局是二字型、L型还是U型?其实都不是,在不考虑空间限制的情况下,“U+1”也就是U型布局加上一字型的岛台,是最完美的厨房布局。当然“U+1”有很多的变种,例如说“L+1”或者是J型也都还不错。其次,带一个阳台的二字形的布局,由于可以分别设置灶台、操作台和水盆柜的高度,基本是小户型最优的布局。
02橱柜高度
完美橱柜的高度是多少?有人说台面的高度应该是身高除以二加五,有人说要做高低台,其实台面要三分高度才是最完美的,也是最舒服的。操作台的高度要在80到85公分,根据主厨的身高和臂展来做出调整,灶具本身由于有五公分的高度,所以灶台柜要比操作台低五公分,水盆柜要比操作台高十公分,才是用着最舒服的。三分台面很多人觉得不现实,其实刚才提到的带阳台的二字形布局就可以做到无错台三分,很多布局是可以通过设计来解决的,最重要的是你有没有这个意识。
03橱柜材质
完美橱柜的材质是什么?橱柜柜体必须有一定的防水跟防潮的能力,因此多层板做柜体优于颗粒板。古典风格门板有线型的,六面无缝的烤漆工艺是最好的选择,磨压工艺立体感差,而且不完全防水,尽量别用。现代风格平板柜门双饰面耐磨耐滑,是最好的选择。厨房毕竟是操作区,肤感材质柜门容易粘手印,高光材质柜门容易划伤,如果喜欢请用在其他空间,尽量不要用在厨房。
04厨房水槽和台面
厨房选择大单槽带活动的沥水篮,高抛式的抽拉龙头,基本是现代水槽形式的最优解。材质上304不锈钢的手工槽是颜值实用性的最优解。台上盆不推荐,台中盆对工艺的要求高,除非买的是大品牌的橱柜,不然不要选台下盆。台面选择岩板和石英石都可以,其他的材质不管你听过还是没有听过,都不要选。
05厨房照明
完美的厨房的灯光,首先环境光一定要有顶面的光源,虽然无法解决切菜炒菜的问题,但也一定要有,吊柜下的那一排灯带非常的重要,一定要贯穿整个的台面,这样切菜洗菜的时候才会有灯光,不会背光。操作台的灯光色温要选择冷光,冷光更容易让人精神集中,不容易切到手。
06厨房门
如果你家的门洞较小,玻璃平开门依然是最好的选择,密封好,防油烟。唯一要注意的是开抽烟机的时候要开一点窗户,以免厨房内部产生负压。如果你家的门洞比较大,一般是要选择推拉门的,推拉门优先选择吊轨推拉门如果偏爱地轨,就选择凸出来的地轨,轨道不要选择凹进去的,太难打扫卫生了。
以上就是关于完美厨房必备的六大要素的介绍,希望对您有帮助。




粤公网安备 44030402000760号
