家在深圳,真实业主生活圈_房网论坛

0

|

325

【扬帆装饰】施工现场巡检,工艺展示(不断更新......)!

雕饰家园
雕饰家园

积分:-

注册时间:-

81楼
2022-05-09 17:23:03

扬帆装饰
扬帆装饰

积分:-

注册时间:-

82楼
2022-05-10 13:57:32 来自Android手机客户端
细节决定成败







扬帆装饰
扬帆装饰

积分:-

注册时间:-

83楼
2022-05-11 13:10:53 来自Android手机客户端
看得见的真材实料,细节工艺





扬帆装饰
扬帆装饰

积分:-

注册时间:-

84楼
2022-05-12 13:47:36 来自Android手机客户端
深圳暴雨红色预警,墙体定位中。杨工给观众亮个相









斯沃德不锈钢厨柜
斯沃德不锈钢厨柜

积分:-

注册时间:-

85楼
2022-05-12 17:29:15

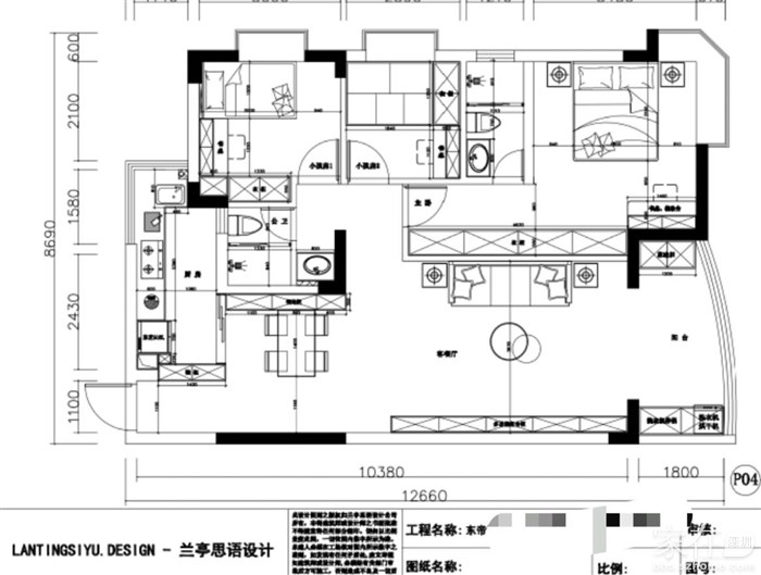
兰亭思语
兰亭思语

积分:-

注册时间:-

86楼
2022-05-13 13:56:03 来自Android手机客户端
很多小区因暴雨停工,这个小区允许施工。监理不定期进行检查。升级版的砌墙工艺











szztdh
szztdh

积分:-

注册时间:-

87楼
2022-05-13 16:35:31
每天追更已成习惯
扬帆装饰
扬帆装饰

积分:-

注册时间:-

88楼
2022-05-15 16:26:36 来自Android手机客户端
项目经理对监理讲话客客气气的
扬帆专用的工业吸尘器



诺大的吸尘器,专业的工业吸尘,要干就干像样的

诺大的吸尘器,专业的工业吸尘,要干就干像样的



扬帆装饰
扬帆装饰

积分:-

注册时间:-

89楼
2022-05-17 21:40:09 来自Android手机客户端
有计划地进行。水泥地都保护一尘不染。









印刷太阳
印刷太阳

积分:-

注册时间:-

90楼
2022-05-17 22:10:43 来自Android手机客户端
工具有!搅拌机,脚手架配套的。模板,斗车。发电机,马路切,水准仪,全站仪。水管,地拖线。等。材料有,灰色美缝剂。黑豹防水,涂料。胶带,水箱20个,蹲厕10个。50和110排水管。4分铁线管。电线,以及配件。全新上下床5套。大水桶10个。手动工具无数还有吊顶材料
扬帆装饰
扬帆装饰

积分:-

注册时间:-

91楼
2022-05-17 22:31:14 来自Android手机客户端
每日工作汇报







szztdh
szztdh

积分:-

注册时间:-

92楼
2022-05-18 12:40:29
每天追更
扬帆装饰
扬帆装饰

积分:-

注册时间:-

93楼
2022-05-18 12:41:23 来自Android手机客户端
蛇口.东帝海景花园吉时开工

?有二孩的学位房配有二孩的设计师,设计师不是搞几张美图,要有生活经验,才能设计出接地气的作品。









扬帆装饰
扬帆装饰

积分:-

注册时间:-

94楼
2022-05-20 17:15:54 来自Android手机客户端
按我们的计划进行,装修小白也不必担心



扬帆装饰
扬帆装饰

积分:-

注册时间:-

95楼
2022-05-21 20:39:49 来自Android手机客户端
每一遍防水都不能马虎



扬帆装饰
扬帆装饰

积分:-

注册时间:-

96楼
2022-05-22 19:33:02 来自Android手机客户端
周末水电验收







扬帆装饰
扬帆装饰

积分:-

注册时间:-

97楼
2022-05-24 17:39:45 来自Android手机客户端
质控部监理巡检

扬帆装饰
扬帆装饰

积分:-

注册时间:-

98楼
2022-05-26 21:47:05 来自Android手机客户端
防水是重中之重,每一遍都要认真仔细





扬帆装饰
扬帆装饰

积分:-

注册时间:-

99楼
2022-05-27 17:28:59 来自Android手机客户端
公司实行材料统一配送,监理对材料进行防伪检查,确保真材实料









扬帆装饰
扬帆装饰

积分:-

注册时间:-

100楼
2022-05-29 21:16:48 来自Android手机客户端
水电验收,我们监理列了十几条。项目经理发布周计划







  • 插入图片

    支持一次选择9张图片上传(使用Ctrl、Shift选中);

    支持jpg、png、gif,单张图片不超过10M,png不超过1M,gif不超过300K。

    • 继续添加

  • 提到好友

3(16px)

楼主最近发表

相关帖子

    大家都在看

    下载家在深圳APP

    关注家在公众号