家在深圳,真实业主生活圈_房网论坛

0

|

64

【扬帆装饰】《68平2房改3房》—清新北欧风!

扬帆装饰
扬帆装饰

积分:-

注册时间:-

主楼
2021-02-26 08:41:05
标签: 点击标签查看相关内容

【扬帆装饰】《68平2房改3房》—清新北欧风!

设计团队:兰亭思语设计
施工团队:扬帆装饰
项目地址:泰雅园
建筑面积:68
设计风格:现代北欧
文案:杨


分享
0
扬帆装饰
扬帆装饰

积分:-

注册时间:-

沙发
2021-02-26 08:46:32
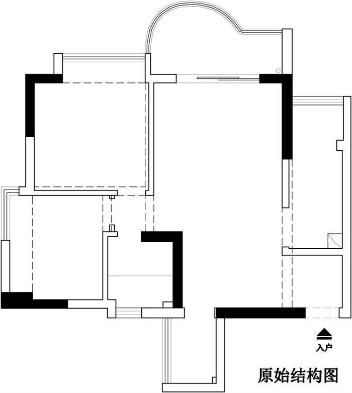
业主是一对年轻夫妇,首次置业,常住两人,要求结构上2房改3房,储物空间要多,为将来宝宝预留空间。我们把露天阳台改造成书房,厨房外拓,厨房与客厅隔墙改为通透的黑色窄框玻璃,风格上我们定调为清新北欧风。



扬帆装饰
扬帆装饰

积分:-

注册时间:-

板凳
2021-02-26 08:53:13

VESTIBULE | 玄关

六角砖与木地板自然衔接,时尚又实用

模玩柜设计,每天出门回家都能看到自己喜欢的收藏,自然会有一个好心情





扬帆装饰
扬帆装饰

积分:-

注册时间:-

地板
2021-02-26 08:57:37
LIVING ROOM | 客厅

朝北的客厅,原本光线不太好,设计师巧妙地在厨房开了一扇窗,延伸了空间。黑色窄边框构成,规则中求变化,黑白灰的对比,这一面墙仿佛是一件美术构成作业。








扬帆装饰
扬帆装饰

积分:-

注册时间:-

4楼
2021-02-26 09:02:42

 DINING ROOM | 餐厅

谷仓门简约时尚的吊灯和墙面装饰,为餐厅增色不少。





扬帆装饰
扬帆装饰

积分:-

注册时间:-

5楼
2021-02-26 09:05:34
KITCHEN | 厨房

通风采光良好,双门冰箱,让人感觉是100平的大房子的厨房配套。入厨也可以和客厅亲子互动!






扬帆装饰
扬帆装饰

积分:-

注册时间:-

6楼
2021-02-26 09:07:34
 STUDY | 小书房

把原先露天的阳台改造成了小书房,在寸土寸金房价高昂的深圳,实在是为客户创造了价值




扬帆装饰
扬帆装饰

积分:-

注册时间:-

7楼
2021-02-26 09:25:49
BATHROOM | 浴室

合理的供排水设计,实现了干湿分离


扬帆装饰
扬帆装饰

积分:-

注册时间:-

8楼
2021-02-26 09:27:40
 MASTER BEDROOM | 主卧

衣柜大书柜(展示柜)书桌床头柜应有尽有,睡觉前还能看到心爱的模玩










扬帆装饰
扬帆装饰

积分:-

注册时间:-

9楼
2021-02-26 09:30:38
SUBALTERN ROOM | 次卧

次卧,也是未来的儿童房,功能区域先规划好。省位置收纳功能强大的榻榻米床






扬帆装饰
扬帆装饰

积分:-

注册时间:-

10楼
2021-02-26 09:34:19
 BALCONY | 阳台
 
阳台的标配:洗衣机伴侣,阳台柜


客厅连阳台,餐厅连通书房,南北通透,整个空间感大好多!

扬帆装饰
扬帆装饰

积分:-

注册时间:-

11楼
2021-02-26 09:37:31
作品发布完毕,感谢各位朋友的支持!扬帆装饰将不懈努力,带给大家更多的案例分享










bobo26
bobo26

积分:-

注册时间:-

12楼
2021-02-26 12:14:16

lilyyyyyyyyy
lilyyyyyyyyy

积分:-

注册时间:-

13楼
2021-02-28 16:22:00 来自Android手机客户端
怎么联系?
扬帆装饰
扬帆装饰

积分:-

注册时间:-

14楼
2021-02-28 19:03:45 来自Android手机客户端
已悄,谢谢
引用lilyyyyyyyyy的发言:
怎么联系?
波澜不惊2
波澜不惊2

积分:-

注册时间:-

15楼
2021-03-07 21:19:15 来自iPhone客户端
老板,罗湖的毛坯接吗?接的话,留个联系方式,谢谢
扬帆装饰
扬帆装饰

积分:-

注册时间:-

16楼
2021-03-07 21:39:44 来自Android手机客户端
已悄,谢谢
引用波澜不惊2的发言:
老板,罗湖的毛坯接吗?接的话,留个联系方式,谢谢
qiqi513
qiqi513

积分:-

注册时间:-

17楼
2021-03-11 22:10:58 来自iPhone客户端
怎么联系
扬帆装饰
扬帆装饰

积分:-

注册时间:-

18楼
2021-03-12 13:30:42 来自Android手机客户端
已悄
引用qiqi513的发言:
怎么联系
艺杰
艺杰

积分:-

注册时间:-

19楼
2021-03-14 14:31:40 来自m.szhome.com
你好,联系电话多少?
扬帆装饰
扬帆装饰

积分:-

注册时间:-

20楼
2021-03-14 21:27:55 来自Android手机客户端
已悄
引用艺杰的发言:
你好,联系电话多少?
  • 插入图片

    支持一次选择9张图片上传(使用Ctrl、Shift选中);

    支持jpg、png、gif,单张图片不超过10M,png不超过1M,gif不超过300K。

    • 继续添加

  • 提到好友

3(16px)

楼主最近发表

相关帖子

    大家都在看

    下载家在深圳APP

    关注家在公众号