家在深圳,真实业主生活圈_房网论坛

0

|

16

144㎡现代简约︱本味生活• 简单纯粹

鲁门设计
鲁门设计

积分:-

注册时间:-

主楼
2024-06-14 18:05:30
标签: 点击标签查看相关内容

144㎡现代简约︱本味生活• 简单纯粹

项目地址 | 深圳 龙岗

改造面积 | 144㎡

设计单位 | 鲁门设计





说在前面

本案是一个三口之家,低调朴实的夫妻二人打算将房子作为未来养老居住,购置的这套二手房已经放置多年,原来的户型空间很多都没有被合理利用,夫妻二人希望通过我们设计师的规划,将空间重新布局,增加强大的收纳系统,女主人希望房子简洁素雅舒适,格局大气,功能齐全。





分享
0
鲁门设计
鲁门设计

积分:-

注册时间:-

沙发
2024-06-14 18:07:10
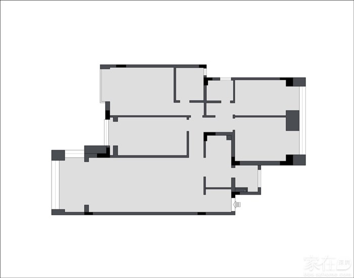
户型分析|House typ

▲原始户型图

原始格局非常方正,功能齐全
主要是装修陈旧、收纳空间不足



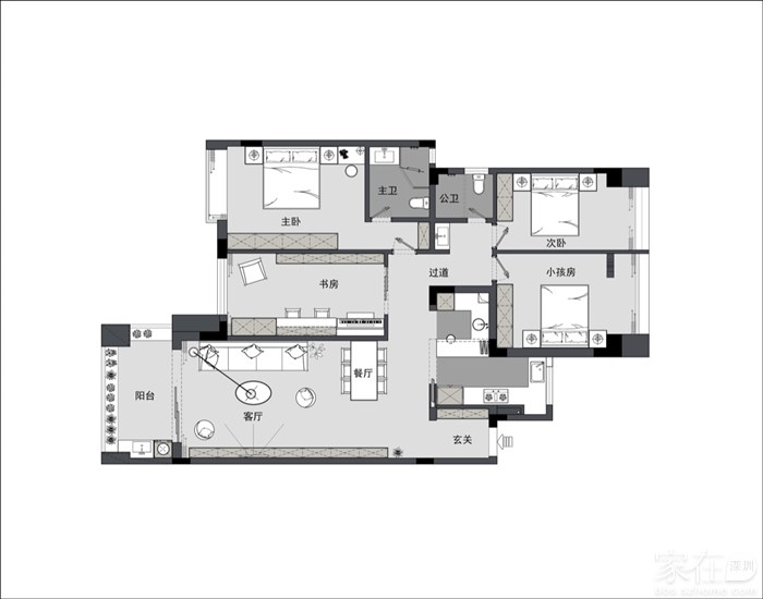
▲改造后户型图

平面规划设计,以其合理的空间布局、丰富的功能需求和人性化的细节处理,完美诠释了现代人对美好生活的向往

1、客餐厅公共空间:根据原有的空间结构把客厅餐厅结合在一起,加上满墙的电视柜和餐边柜组合,不仅满足了日常收纳的需求更是对个人品味的尊重。客餐厅一体是一种非常流行的空间设计方式,它将客厅和餐厅合并为一个开放式的空间,使得整个家居环境更加宽敞明亮。这种设计方式不仅美观大方,而且非常实用,能够充分满足家庭成员的社交和休闲需求。

2、中西厨:原有的厨房与小阳台关系比较混乱,厨房几乎是没有采光的,这样的厨房使用起来是不舒服的。将厨房与小阳台打通,这个区域更大。这样可以引入更多的自然光线,使这区域更加明亮。

3、过道宽度的调整,不仅让整个空间显得更加和谐统一,还增加了居住的舒适度。在这里,你可以随意漫步,感受家的每一个角落。

4、主人房内的大衣柜和化妆桌,不仅满足了日常收纳的需求,更是对个人品味的尊重。每一次打开衣柜,都能找到最适合自己的衣物;每一次坐在化妆桌前,都能感受到生活的精致。

此外,充足的分区收纳空间也是平层设计中不可忽视的一环。厨房、卫生间、卧室、书房……每一个区域都有专门的收纳空间,让你的家井然有序,同时也为居住者提供了极大的便利。在这样的环境中生活,每一天都充满了期待和惊喜。

鲁门设计
鲁门设计

积分:-

注册时间:-

板凳
2024-06-14 18:09:19
客餐厅|LD & Restaurant

推开家门,迎面而来的是宽敞明亮的客厅,阳光透过落地窗洒在柔软的沙发上,温馨而又舒适。









中西厨的一体设计,让你在忙碌的工作日也能享受到家的温暖。早晨,一杯香浓的牛奶,搭配一份美味的早餐,开启美好的一天;傍晚,烹饪一桌丰盛的晚餐,与家人共享天伦之乐
















鲁门设计
鲁门设计

积分:-

注册时间:-

地板
2024-06-14 18:10:18
中西餐厨|Chinese and Western cuisine

L型操作台面,合理利用每寸空间,满足日常烹饪需求。



通过对空间的合理规划,做成中西结合的厨房,有效的控住油烟的流向,在厨房与西厨的吧台上安装一个折叠窗,这样既可以保证厨房的独立性,又可以引保证空间的亮度。



鲁门设计
鲁门设计

积分:-

注册时间:-

4楼
2024-06-14 18:11:09
主卧|Master bedroom

主卧是一个充满温馨与舒适的私人空间,是家中最为私密的地方之一。一走进主卧,首先映入眼帘的是一张柔软的大床,床上铺着精美的床单和柔软的枕头,让人忍不住想要躺下来好好休息一番。 


床边是一个精致的床头柜,上面摆放着一盏台灯和一叠书籍,为卧室增添了一丝文艺气息。在主卧的另一侧,设有一个梳妆台,台上摆放着各种化妆品和护肤品。梳妆台的旁边是一个舒适的椅子,供居住者在化妆时坐下休息。



整个主卧的设计充满了温馨与舒适,让人一走进房间就能感受到家的温暖。无论是独自一人还是与爱人共度时光,主卧都是一个理想的休息和放松的空间。
鲁门设计
鲁门设计

积分:-

注册时间:-

5楼
2024-06-14 18:11:40
次卧|Second bedroom

次卧是一个宁静而温馨的私人空间,它位于房屋的次要位置,但同样承载着居住者的生活需求和情感寄托。



鲁门设计
鲁门设计

积分:-

注册时间:-

6楼
2024-06-14 18:11:50
一踏入次卧,首先映入眼帘的是一张舒适的小床,床上铺着柔软的床单和抱枕,营造出一种温馨而舒适的氛围。床头墙上挂着一幅简单的风景画,为房间增添了一抹宁静的气息。

鲁门设计
鲁门设计

积分:-

注册时间:-

7楼
2024-06-14 18:12:45
男孩房|Boys' room

男孩房的设计充满了活力和冒险精神,以激发男孩子们的想象力和好奇心。


房间的主色调是蓝色和黄色,这两种颜色代表着广阔的天空和温暖的阳光,象征着自由和活力。明亮色彩的搭配,让整个房子趣味更浓。







鲁门设计
鲁门设计

积分:-

注册时间:-

8楼
2024-06-14 18:13:20
书房|Den

书房是个美妙的地方。无论外界如何喧嚣,进入这个小小空间,宛如到了一片净土。



博尔赫斯说,如果有天堂,应该是图书馆的模样。图书馆太大,小小书房便足以抚慰我们疲惫的心。





鲁门设计
鲁门设计

积分:-

注册时间:-

9楼
2024-06-14 18:17:26
阳台|Balcony

超大阳台也考虑了超多储物,所以柜子、水盆一个也不能少,当然洗衣机和烘干机是标配。

鲁门设计
鲁门设计

积分:-

注册时间:-

10楼
2024-06-14 18:18:11
卫浴|Bathroom

门口的收纳柜,专门收纳卫生间用品,让生活更井井有条。



简洁的卫生间布局,LED浴室镜依然照亮着每一个笑容。

鲁门设计
鲁门设计

积分:-

注册时间:-

11楼
2024-06-14 18:20:07
客餐厅前后对比图



厨房前后对比图



主卧前后对比图




男孩房前后对比图


书房前后对比图


鲁门设计
鲁门设计

积分:-

注册时间:-

12楼
2024-06-14 18:20:34

鲁门寄语|Luman's message


简约并不是单纯的简单,“少即是多”

去除多余装饰,突出空间和功能的纯粹性。

不只是一种视觉上的审美,

更是对高效、理性和宁静生活方式的追求。


鲁门设计
鲁门设计

积分:-

注册时间:-

13楼
2024-06-14 18:21:48
-关于我们|About us-


在这个世界里,设计不再只是为了满足基本的生活需求,更是对生活品质和审美趣味的提升,我们倾听着你对美的向往,将你的梦想化为现实。
我们拥有丰富的实践经验:深入理解室内设计的精髓,以创新、实用、舒适为设计理念,将室内空间打造成一个充满个性与灵性的艺术空间。
我们以作品来说话:一个时尚而又舒适的客厅,一个优雅而实用的餐厅,一个静谧而充满个性的卧室……每一个空间,都是我们精心设计的结果。我们运用色彩、光线等元素,将空间的美感发挥到极致。
我们注重每一个细节:从选材到施工,从软装搭配到空间布局,我们始终坚持高品质、精细化的原则。每个作品的成功,源于我们对每一个细节的完美追求。
我们的目标是让每一个客户都能享受到高品质的室内设计服务;我们相信,一次成功的室内设计,不仅是对美的追求,更是对生活的热爱和尊重。
走进我们的室内设计全案设计落地案例,你将感受到美的力量,启发你对生活的无限想象。
让我们一起,探索生活的无限可能


AWARDS  HONORS 获奖荣誉

2022年广东省装饰行业“岭南工匠”称号
2021年广东省装饰行业“功勋设计师”称号
华鼎奖2020-2021年度中国建筑装饰行业最具原创设计师作品奖
2021年度原创室内设计师--深圳室内设计协会
2021年度广东省装饰协会优秀空间设计金奖
2020年度中国设计年度大会--精英设计师华鼎奖
2019-2020年度中国建筑装饰行业最具影响力设计机构(住宅公寓空间类)
金住奖2019中国(深圳)十大居住空间设计师
中国建筑装饰协会2019年度最佳设计机构
 

鲁门设计
鲁门设计

积分:-

注册时间:-

14楼
2024-06-24 10:52:42

鲁门设计
鲁门设计

积分:-

注册时间:-

15楼
2024-07-15 14:58:19
最近遇到很多朋友住着的房子,
有局部调整的需求,
又不想整体拆除装修。
不知道怎么样去弄,
所以我们推出这样一个服务。
局部改造设计 (按空间收费)
如果你家想局部设计改造:
厨房用电器不够用需要升级,
卫生间不好用需要升级,
房间功能需要调整或升级,
客餐厅储物需要增加,
家里软装搭配或灯光需要升级。
我们来给你设计并负责并落地。
按单独空间收取设计费,性价比超高。
服务对象:有局部改造需求的用户。(仅限深圳)
有需求或有兴趣的,可以详细了解咨询。


装修杨工
装修杨工

积分:-

注册时间:-

16楼
2024-10-07 15:32:45

  • 插入图片

    支持一次选择9张图片上传(使用Ctrl、Shift选中);

    支持jpg、png、gif,单张图片不超过10M,png不超过1M,gif不超过300K。

    • 继续添加

  • 提到好友

3(16px)

楼主最近发表

相关帖子

    大家都在看

    下载家在深圳APP

    关注家在公众号