标签:
点击标签查看相关内容
永安设计 | 双御雅轩150m²黑白世界的生活哲学
楼盘 Address | 双御雅轩
户型 Apartment | 四室两厅
面积 Square meters | 150㎡
风格 Style | 现代简约
设计 Designer | 深圳市永安设计
业主是一对年轻刚结婚的夫妻,男主人是一名律师,理性干练的行事风格,对居所有很明确的审美要求,就是黑白搭配的简约空间,要有档次和格调。
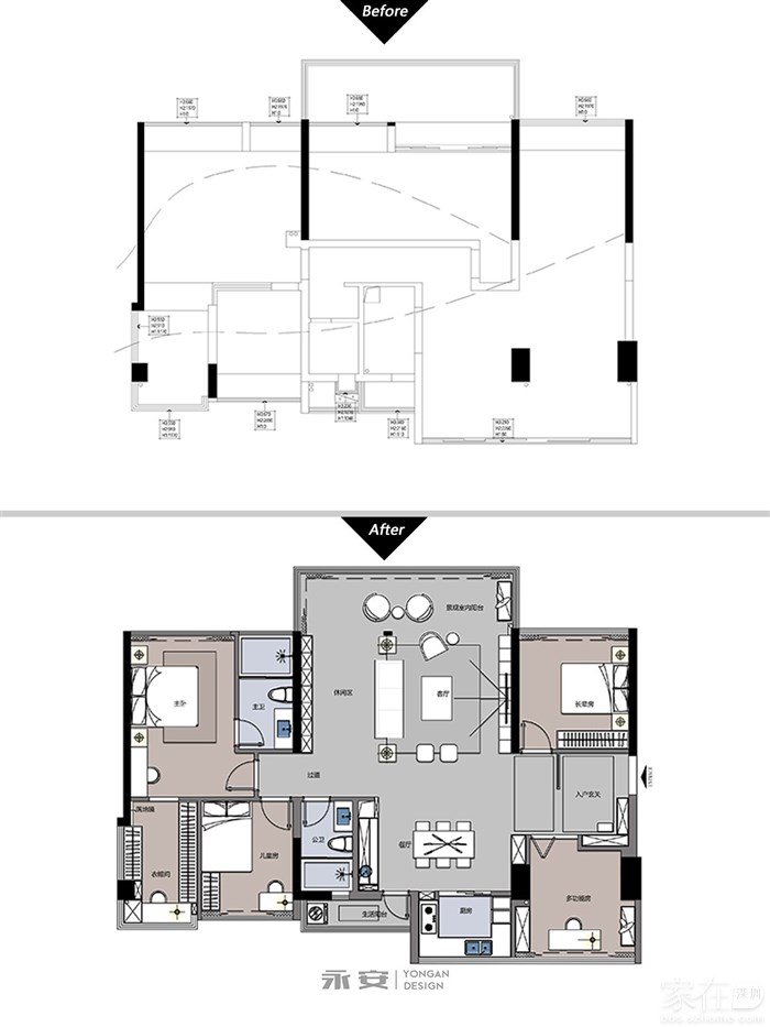
户型调整:
1、入户区域中间的立柱割裂空间,以此为分割,一边是书房,一边是餐厅厨房区域。
2、入户右侧区域隔出长辈房空间,入户也有了独立的玄关。
3、客厅外拓阳台区域,也拆掉多余的隔墙,形成客餐厅一体的大空间。
4、餐厅旁的杂物房空间融入餐厅,做满墙餐边柜。
5、主卧空间过大,一部分隔断形成主卫,相连的小房间做衣帽间。
Porch|玄关
简单的玻璃砖玄关半掩,缓解了入户门正对主卧的尴尬,也让家里家外有了个空间的衔接,让回家也有了仪式感。
Living Room|客厅
客厅以黑白色为主调:黑色的墙、白色的背板和黑色的电视;白色的天花、黑色的梁和白色的柱;黑色的垭口、白色的橱柜和黑色的灯。整个空间不断在黑白的世界间跳转,像是只有黑白键的钢琴,但又演奏出了和谐优美的乐章。
黑色镜面板材包裹横梁,视觉不感觉压抑,还和墙面形成了质感的对比。
Restaurant|餐厅
餐厅还是在黑白的主调上, 同时纤细的吊灯造型,以及天花做了圆弧处理,在造型的细节上缓和了黑白色带来的单调感。白色调的挂画和白墙完美统一,画作略微的暖黄色,已经让餐厅气氛温暖随和。
Master bedroom|主卧
主卧背景墙上白下黑,似乎又是黑白的二元割裂,但白色木格栅的竖纹,在光影下形成了立面的灰色调,斜切的吊顶似乎让空间有了不一样的性格,而柔软可爱的椅子成了空间中温柔的亮点。





粤公网安备 44030402000760号
