永安设计 | 宝安圣拿威200㎡大宅,抒写中式雅致与现代理性!
月明船笛参差起,风定池莲自在香。
——宋代秦观
楼盘 Address | 深圳·圣拿威
户型 Apartment |五室两厅
面积 Square meters | 200m²
风格 Style | 新中式风格
设计 Designer | 深圳市永安设计
本项目业主是一位已过知天命之年,追求有文化沉淀的情景与环境,也追寻自在轻松的人生心境,倚在家中窗边,欣赏过往的鸟儿、船只和飞机,心中风平浪静,安然自在,是业主心中理想之家,所以设计师把文化和气质属性拉满,锁定新中式作为本案的风格。
现在的开放商在大的户型设计上都不会有什么大问题,只是在细节上不可能契合每一位业主等生活习性和个人情感,这正是设计师和装修设计公司的发挥空间和价值舞台。
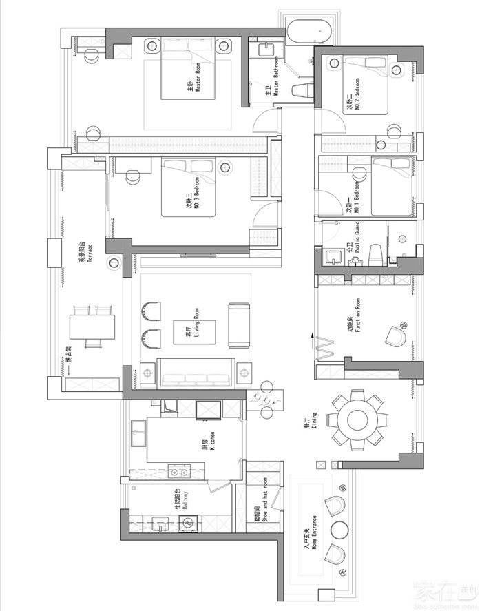
原户型要穿过两扇门和入户阳台才算真正入户,空间显得局促又割裂,设计师在这里把厨房的部分改成吧台,联合入户阳台和餐厅区域,形成大的入户区域概念,空间感一下就打开了,和客厅形成过渡与互动功能;因为有了专门的洗衣家政房,厨房阳台作用不明显,直接合并到厨房增加了面积;主卧的衣帽间奇怪地入侵次卧门口区域,次卧显得局促不通透,实则主卧可以靠墙设计一排衣柜,获得收纳空间,次卧也有了衣柜空间,还在走廊侧腾出展示柜的空间,一举三得。
中式品质空间不止表面符号元素的堆砌,由里而外的文化内涵,新式材料和简约设计手法的结合,才能在真实生活和精神情感之间取得平衡,无视外界的流行与攀比,才是内心真正的文化需求,大隐隐于市的中式人文情怀得以体现!
Corridor|入户走廊 这是由阳台、餐厅和吧台,形成联合的大入户概念区域,深色调的木纹护墙板,为整个项目定下了沉稳大气的中式风格基调。
Livning room|客厅
进入客厅,新式材料与古代场景元素结合,中式圈椅、罗汉塌沙发,宫灯式吊灯,在新形态的风景壁画的映照下,显得那么符合中式人文情感,又有着现代理性的新演绎;
中式的古典换发着新的色韵,似乎深藏府邸,大理石纹岩板、木格栅和装饰金属边条,这些现代材料,在整个环镜映衬下,也显得古色古香起来,赞叹设计师的奇妙之笔。





粤公网安备 44030402000760号
