家在深圳,真实业主生活圈_房网论坛

0

|

93

室内装修烦恼知多少

鲁门设计
鲁门设计

积分:-

注册时间:-

主楼
2024-05-07 16:43:21
标签: 点击标签查看相关内容

室内装修烦恼知多少

熟悉我的朋友都知道我是做室内设计全案落地的。
现在很多装修的朋友经常碰到的问题是:踩坑了或者正在坑中的,已经找了设计师的,交了钱但是不满意的, 别墅已经土建开工了不满意的,已经吊顶空调安装了不满意。你不知道哪不好又说不上来哪好,解决不了,不知道怎么搞,那就我来指导。
应朋友们要求,鲁门设计现在推出设计监理顾问服务,帮助大家解决这些问题,踩坑的帮你出坑,格局设计不满意的给你指导建议,土建施工不满意的帮你验收监管,室内施工不满意的帮你监管优化,施工监理早已普及,设计监理顾问刚好来得及。
低于全案设计的费用,来解决室内装修中遇到的问题。可以按次,可以按面积,也可以按项目来收费。














 
分享
0
鲁门设计
鲁门设计

积分:-

注册时间:-

沙发
2024-05-07 16:46:24
设计监理顾问服务的优势包括:
 
专业性:提供专业的技术知识和经验,确保设计成果和落地细节的质量;
 
客观性:能够站在客观的角度评估方案,提供中肯的意见和建议;
 
效率性:协助客户有效监督设计施工,降低项目成本;
 
规范性:遵守相关标准和细节要求,协助客户确保设计装修成果和落地
 
顾问性:提供顾问咨询服务,帮助客户应对各种设计和施工中遇到的问题并解决,提高质量和效率。
 
 
"室内设计监理顾问服务,打造完美家居空间"
 















鲁门设计
鲁门设计

积分:-

注册时间:-

板凳
2024-05-07 17:20:53
室内设计监理顾问服务需要具备以下专业知识和技能:
 
室内设计知识:了解室内设计的基础知识和流行趋势,掌握各种装修材料的特性和应用方法。
 
建筑法规知识:熟悉建筑法规和相关标准,能够指导施工单位遵守相关规定。
 
项目管理知识:掌握项目管理的流程和方法,能够有效地监督和控制项目的进度和质量。
 
监督和评估技能:能够对设计方案进行评估和调整,并提出优化和改进建议。
 
沟通和协调技能:能够与客户、主材商家、施工单位等各方进行有效沟通和协调。
 
解决问题的能力:能够解决设计和施工过程中出现的问题,提出合理的解决方案。
 
安全和质量意识:注重工程的安全性和质量,能够指导施工单位按照设计方案进行施工。
 
除了以上专业知识和技能外,室内设计监理顾问还需要具备较强的相关工作经验和严谨的工作态度。












 
鲁门设计
鲁门设计

积分:-

注册时间:-

地板
2024-05-07 17:23:47
室内设计顾问可以为客户提供专业的建议和服务,帮助客户创造出符合他们需求和预算的理想家居或工作环境。以下是室内设计顾问的一些好处:
 
个性化设计:室内设计顾问可以根据客户的需求和喜好,设计出独一无二的室内空间。他们可以提供各种设计方案,从简约现代到豪华古典,以满足客户的不同需求。
 
专业建议:室内设计顾问拥有丰富的行业知识和经验,可以为客户提供有关材料选择、颜色搭配、照明设计、家具选购等方面的专业建议。这些建议可以帮助客户避免不必要的错误和浪费,并确保最终的设计方案符合客户的期望和需求。
 
节省时间和精力:室内设计顾问可以帮助客户完成整个室内设计过程,包括前期调研、方案设计、施工监督等。客户只需要与设计师沟通并提供必要的信息和反馈,就可以轻松地实现自己的设计梦想。
 
控制预算:室内设计顾问可以帮助客户控制预算,确保设计方案在预算范围内。他们可以提供各种价格和质量的材料和家具选择,以满足客户的预算限制。
 
提高生活质量:室内设计顾问可以通过巧妙的设计,提高客户的生活质量。他们可以设计出舒适、安全、方便和美观的室内空间,让客户在其中感到舒适和放松。
















 
鲁门设计
鲁门设计

积分:-

注册时间:-

4楼
2024-05-07 17:25:22
关于室内设计的 5 大趋势,每个都值得尝试
 
室内设计一直在不断发展和变化,每一年都会有新趋势涌现。今天我想和大家分享一下我认为未来几年内将会流行的 5 大室内设计趋势,每个都非常值得尝试!
 
趋势一:自然元素 近年来,人们越来越注重环保和可持续发展,这也反映在了室内设计中。自然元素如木材、石材、绿植等开始成为主流,为家居带来更多的自然气息。不仅如此,这些元素还能够缓解压力、提高空气质量,让我们的家居更加健康舒适。
 
趋势二:智能科技 智能科技的发展让我们的生活变得更加便捷和智能化。在未来,智能家居将会成为主流,通过语音控制、手机 APP 等方式,我们可以轻松控制家中的各种设备,如灯光、电器、窗帘等。智能科技的加入让我们的家居更加安全、舒适和便捷。
 
趋势三:个性化定制 在这个追求个性化的时代,人们越来越不满足于千篇一律的家居设计。因此,个性化定制开始成为主流。无论是家具、灯具还是墙面装饰,我们都可以根据自己的喜好和需求进行定制,让家居更加独一无二。
 
趋势四:开放式空间 传统的封闭式空间已经不能满足现代人的需求,开放式空间开始成为主流。将客厅、餐厅、厨房等空间打通,不仅能够增加室内的采光和通风,还能够让家居更加宽敞明亮。同时,开放式空间还能够增进家人之间的交流和互动。
 
趋势五:色彩鲜艳 在过去,家居设计中颜色的选择较为保守,以白色、灰色、棕色等为主。但是,在未来,色彩鲜艳的设计将会成为主流。明亮的色彩不仅能够为家居带来更多的活力和生机,还能够提高家居的视觉冲击力。
 
以上就是我认为未来几年内将会流行的 5 大室内设计趋势,每个都非常值得尝试!当然,每个人的喜好和需求都不同,在进行室内设计时,我们应该根据自己的实际情况进行选择和取舍。希望我的分享能够给大家带来一些启示和灵感
 
我爱我家GT
我爱我家GT

积分:-

注册时间:-

5楼
2024-05-07 20:51:03 来自Android手机客户端
鲁门设计
鲁门设计

积分:-

注册时间:-

6楼
2024-05-08 09:51:06
室内设计监理顾问服务的重要性及作用:
 
确保设计成果符合客户需求和标准
 
提高设计质量和效率
 
提供顾问咨询服务,解决设计难题
 
节省成本,缩短施工周期
 
保护客户权益,保证工程质量
 
鲁门设计
鲁门设计

积分:-

注册时间:-

7楼
2024-05-08 09:56:49













鲁门设计
鲁门设计

积分:-

注册时间:-

8楼
2024-05-08 10:01:14











鲁门设计
鲁门设计

积分:-

注册时间:-

9楼
2024-05-08 10:24:29















鲁门设计
鲁门设计

积分:-

注册时间:-

10楼
2024-05-09 15:30:50









鲁门设计
鲁门设计

积分:-

注册时间:-

11楼
2024-05-31 10:17:21
精装房到底该怎样验房?最近很多朋友精装房入伙,总是不知道如何收房,今天就帮大家整理几点注意的事项,只要按这个验收,大概率不会有坑。
 收房时一定要先验房再签字,否则会造成巨大的损失,视频有点长记得点赞收藏。
 
第一、检查电路,先看是不是每一路都对应相应的房间,电源开关能否正常使用,漏电是否跳闸。
 
第二、检查水路,打开水龙头,看放水速度,盆下是否漏水,再接一盆水倒入到地漏处,看地漏排水是否通畅。
 
第三、弱电箱离地30公分,看网线是不是五类或以上,光纤是否入户,是否给光猫预留插座。
 
第四、验门窗,先看入户门是否平整,是否密闭,有无晃动感。窗户推拉是否通畅,用A4纸测试密封性,拉不动才合格。
 
第五、检查墙面,用强光灯检查墙面是否有渗水,凹凸不平,裂缝等问题,墙面的墙纸是否有开裂脱落。
 
第六、检查瓷砖,用空鼓锤敲击地面、墙面的瓷砖,墙面空鼓不能超过5%,超过一定要要求更换。
 
第七、做闭水试验,将卫生间地漏封堵,蓄水后做好标记,48小时候到楼下邻居家观察是否有水渗出。
 
第八、测量房子的层高和对角线,测量层高、对角线是否在误差范围内。
 
第9、检查橱柜,开合是否顺畅,所有的隔板和这种加固点是否安装,拉篮是否能正常的归位。
 
第十、检查电器是否正常使用,抽油烟机、中央空调、热水器。
 
最后大家把所有的问题记录下来,叮嘱维修。

 
鲁门设计
鲁门设计

积分:-

注册时间:-

12楼
2024-06-01 15:44:02
水电是最应该重视的,看看这个是不是有用。










鲁门设计
鲁门设计

积分:-

注册时间:-

13楼
2024-06-03 10:44:59
一个刚毕业照的朴实舒适的居室空间供参考









鲁门设计
鲁门设计

积分:-

注册时间:-

14楼
2024-06-04 09:42:04
卧室装修哪些坑不要踩?别怪我没提醒你,每一条都很实用。
 
1.卧室不装电视,很少用,还占空间,如果特别想装,我建议您优先考虑一下投影。
 
2.不做复杂吊顶,降低层高还压抑,做双眼皮吊顶,简单又耐看
 
3.衣柜一定做到顶,完美衔接,整体性强,无卫生死角。
 
4.不管你是铺瓷砖还是地板,踢脚线的颜色选与门框的颜色一致,增加线条延伸。
 
5.床头两侧做双控开关,不然让谁去关灯谁难受,注意,高度一定要高于你家的床头柜。
 
6.卧室门千万别贪便宜买蜂窝纸的,也别犯傻买纯原木的,价格太贵,要买内心为桥洞力学结构的,胶条选45度磁吸静音条。
 
7.普通家庭卧室不要做风管机,好看但是噪音大,耗能高,维修率也大,装一个壁挂空调,把管子插座隐藏好,也不难看,更重要的是省钱。
 
8.床底的高度大于十厘米,扫地机器人才能正常进出,也可以直接做到底。免打扫
 
9.把飘窗做学习桌儿,夏天不热冬天不冷吗?飘窗侧面做书架,放上软垫,偶尔看看书,晒晒太阳,好看实用又省钱。
 
10.窗帘的颜色选与家里主色系相近的颜色,互相呼应,这是最稳妥的搭配。如果你想跳色,建议你先看看别人家的效果图吧。

 
鲁门设计
鲁门设计

积分:-

注册时间:-

15楼
2024-06-06 15:34:05
全屋定制知多少










鲁门设计
鲁门设计

积分:-

注册时间:-

16楼
2024-06-07 15:43:29
你的家具选什么木材,看完这个对你有帮助











鲁门设计
鲁门设计

积分:-

注册时间:-

17楼
2024-06-11 16:58:13
不买会后悔的20个家装产品,全是小细节,以后会解决大问题!
 
1、洗碗机:再也不用为了谁刷碗吵架了,洗完还能直接消毒。
 
2、净水器:帮你过滤掉水里的杂质,再也不用担心水质问题。
 
3、扫地机器人:你扫不到的卫生死角它都能去!
 
4、烘干机:有了它,阳台再也不用堆满衣服,轻松还你一个开阔大阳台。
 
5、小厨宝:冬天洗菜再也不用冻手了,厨房热水秒出,做饭超享受。
 
6、智能马桶:加热座圈、自动清洁和除臭功能一条龙,再也不用担心马桶有味道了。
 
7、抽拉水龙头:传统的水龙头位置固定,留有很多卫生死角,抽拉水龙头灵活更方便。
 
8、新风机:在置换新鲜空气的同时,进行过滤。再也不用吸入带扬尘和PM2.5的空气了。
 
9、五金配件:柜子、房门的寿命大多取决于五金,如果不想柜门突然掉下来,就多花点钱用在五金上吧。
 
10、尺寸合适的家具:像沙发这种大件家具,买小了空间撑不起来,大了又显臃肿。
 
11、防臭下水与防臭地漏:卫生间再也不会因为排水有味道。
 
12、收纳多的茶几:客厅的东西只会越来越多,美观的同时要有实用性。
 
13、半开放式鞋柜:一定要做半开放式鞋柜,不要做全封闭式的,出门回家更方便。
 
14、安装油烟止回阀:否则油烟和冷空气很容倒灌。
 
15、浅色台面:卫生间浴室柜不要选择深色台面,有一点灰都能看出来。
 
16、花洒:不选便宜的花洒,否则几个月表面就会生锈起皮。
 
17、垃圾处理器:把厨余垃圾往水池里一倒,告别在水槽掏厨余垃圾的麻烦。
 
18、恒温花洒:冬天洗澡再也不用因为其他地方用水而忽冷忽热了。
 
19、毛巾烘干架:卫生间里的毛巾总是湿漉漉的,放一个烘干架,从此告别螨虫。
 
20、防溅插座:卫生间一定要装带防溅盒的插座,要不不小心把水弄进去,插座很容易损坏。

 
鲁门设计
鲁门设计

积分:-

注册时间:-

18楼
2024-06-12 10:34:21
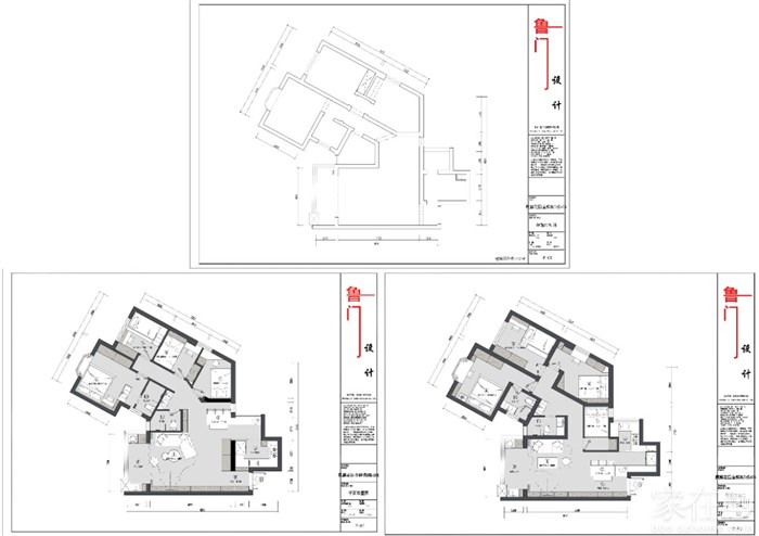
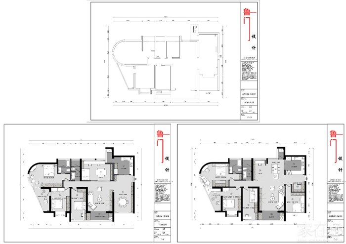
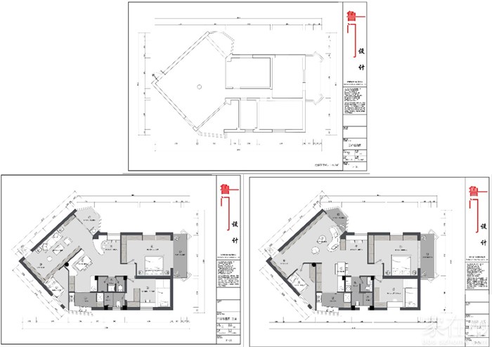
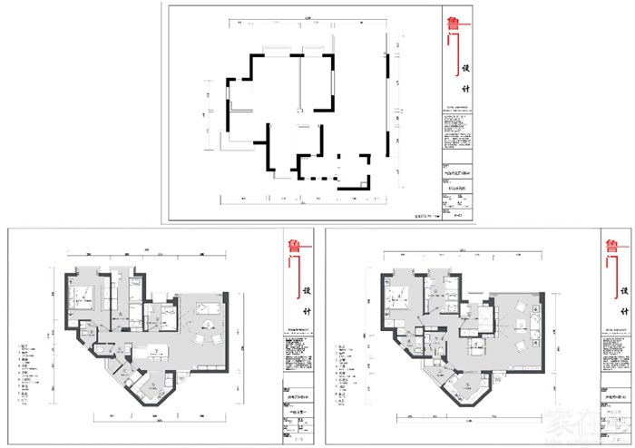
室内设计师在户型改造中扮演着非常重要的角色,设计师可以通过专业的设计和规划,将原始户型进行优化和改善,从而提高空间的利用率和居住体验。室内设计师通常会从以下几个方面入手:
 
1. 分析原始户型:室内设计师会对原始户型进行详细的分析,了解空间的结构、布局、采光等情况,找出存在的问题和不足之处。
 
2. 了解居住者需求:室内设计师会与居住者进行充分的沟通,了解他们的生活需求、习惯、喜好等,从而为他们提供更加个性化的设计方案。
 
3. 提供创意和建议:室内设计师会根据原始户型和居住者需求,提供创意和建议,例如改变空间布局、增加功能区域、改善采光等,从而使空间得到更加合理的利用。
 
4. 控制成本和预算:室内设计师会根据居住者的预算和需求,提供合理的设计方案,控制成本和预算,避免不必要的浪费。
 
5. 监督施工和验收:室内设计师会在施工过程中进行监督和指导,确保施工质量和进度,同时在验收过程中进行严格的检查,确保设计方案得到完美的实现。
 
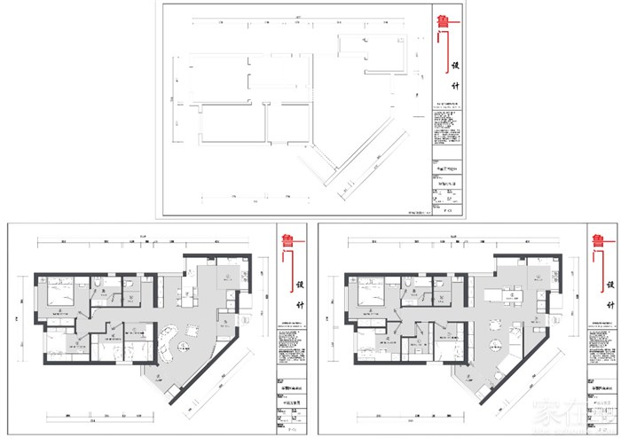
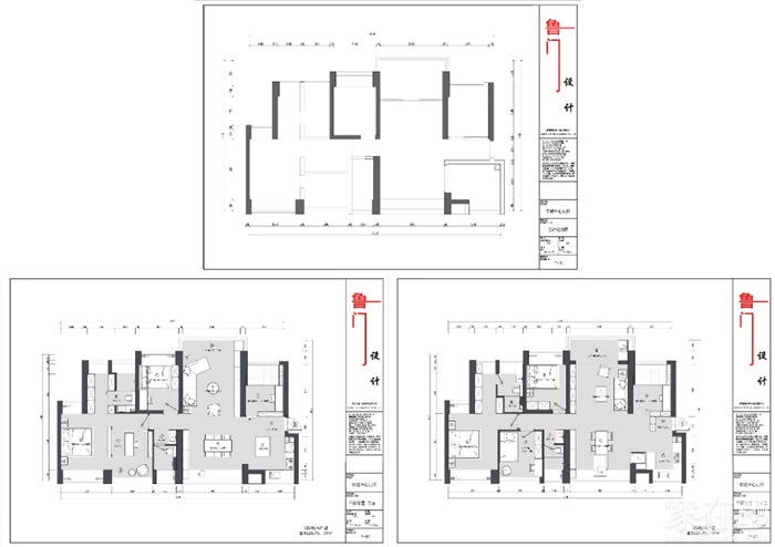
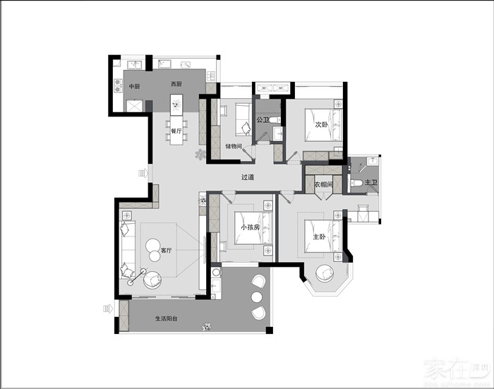
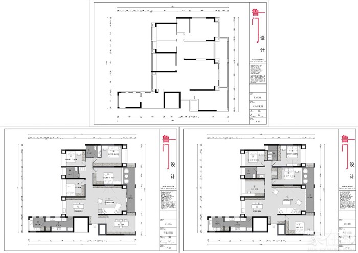
室内设计户型改造的重要性主要体现在以下几个方面:
 
1. 提高空间利用率:通过改造户型,可以充分利用室内空间,增加存储空间、功能区域等,使空间得到更加合理的利用。
 
2. 改善居住体验:根据居住者的生活需求和习惯,改造户型可以使居住环境更加舒适、便利,提高居住体验。
 
3. 满足个性化需求:每个人的生活方式和需求都不同,通过改造户型,可以满足居住者的个性化需求,使居住环境更加符合自己的生活方式。
 
4. 提升房屋价值:好的户型改造可以使房屋的布局更加合理,功能更加完善,从而提升房屋的价值。
 
总之,室内设计师在户型改造中扮演着非常重要的角色,他们可以通过专业的设计和规划,为居住者提供更加舒适、便利、个性化的居住环境。


















 
长洲
长洲

积分:-

注册时间:-

19楼
2024-06-13 10:03:45
大师你好啊,看着好专业,这装修风格看着好喜欢啊,我有一个140的房子想要装修一下,怎么收费啊,装修工期多久啊,要怎么联系大师你啊
鲁门设计
鲁门设计

积分:-

注册时间:-

20楼
2024-06-13 11:05:48
谢谢你的认可。
我们是做全案设计落地的,也可以做设计加半包施工,也可以做纯设计,也可以做装修设计顾问服务。服务不同收费都不一样的,您有空可以我们见面具体聊下细节。可以根据你的需求选择服务。
不管哪种服务,我们都会帮你规划好整体费用,尽量让您省心省事。
联系电话:13554726989  万工 微信同号
公司地扯:福田区八卦岭工业区424栋5层520
引用19楼长洲的发言:
大师你好啊,看着好专业,这装修风格看着好喜欢啊,我有一个140的房子想要装修一下,怎么收费啊,装修工期多久啊,要怎么联系大师你啊
  • 插入图片

    支持一次选择9张图片上传(使用Ctrl、Shift选中);

    支持jpg、png、gif,单张图片不超过10M,png不超过1M,gif不超过300K。

    • 继续添加

  • 提到好友

3(16px)

楼主最近发表

相关帖子

    大家都在看

    下载家在深圳APP

    关注家在公众号