家在深圳,真实业主生活圈_房网论坛

0

|

12

143㎡ |休闲活动区+动静分离,三人六猫的理想之居

鲁门设计
鲁门设计

积分:-

注册时间:-

主楼
2024-04-07 17:57:51
标签: 点击标签查看相关内容

143㎡ |休闲活动区+动静分离,三人六猫的理想之居



项目信息:

项目地址 | 深圳 龙华

改造面积 |143㎡

设计单位 | 鲁门设计



说在前面

本案的家庭成员比较特殊,除了屋主一家三口,还有6只小毛孩(小猫咪)。女主人很精致,对生活品质要求高,对房子功能的很重视,希望设计师能根据家庭成员来具体调整。在空间方面,厨房餐厅的格局和舒适度希望有所提升,同时屋主希望能增加西厨空间,有专门的休闲区用来逗猫或和朋友小酌谈天说地,还需要尽量多的收纳空间,并尽量让公共区域视觉效果更宽敞。不同的年龄生活阶段,我们对房屋的需求也会随之改变。

分享
0
鲁门设计
鲁门设计

积分:-

注册时间:-

沙发
2024-04-07 17:59:39
户型分析|House type analysis




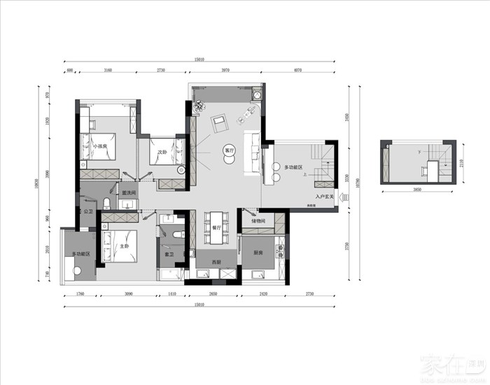
▲原始户型图



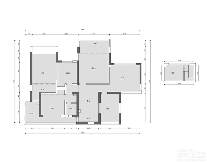
▲改造后户型图
客厅:把原主卧改成客厅,原来的客厅规划成多功能房,给猫咪一个独立空间,利用折叠门划分区域,扩大公共区域活动面积
厨房:厨房很方正,没有大改动;根据女主人需求中西厨结合,中厨隔出一部分空间充当杂物家,收纳能力max
卧室:把原衣帽间改成客卧,以便偶尔朋友老人过来小住
针对屋主的需求,设计师对整体格局和功能做了很大调整,动静分离,特别是“人和宠物分离”是功能设计的主线。

鲁门设计
鲁门设计

积分:-

注册时间:-

板凳
2024-04-07 18:00:15
玄关|Entrance


原来的房子进门直接就是一个楼梯,设计师增加了独立鞋柜,既多出了一个玄关,又挡住进门楼梯的出口让空间更整体美观。


鲁门设计
鲁门设计

积分:-

注册时间:-

地板
2024-04-07 18:02:40
休闲区|Relaxation area

由外步入室内的连接点,是归家的第一仪式感,仪式的意义在于身,更达于心。玄关内部的休闲区,让一日奔波的主人进入房门的一霎那就能卸下心灵的重担,得到放松。



休闲区的一桌、一椅,都凝聚着空间的行与神,自由充斥在每个角落。
小吧台的设计,既满足朋友闲聊小酌,也能在这里逗猫喝茶。
用三扇大推拉门既能打开和公共空间相连,也能关闭成为独立空间给猫猫夜间活动。




从休闲区到阁楼的楼梯进行了重新布局,既能顺利上下,又能尽量弱化(毕竟不是传统复式楼)。


鲁门设计
鲁门设计

积分:-

注册时间:-

4楼
2024-04-07 18:03:17
书房|Den


人生的小确幸,是拥有一间小书房。将原来的阁楼做成了开放式书房,既独立又能和下面休闲区空间一体,让读书变成一件浪漫的事。


鲁门设计
鲁门设计

积分:-

注册时间:-

5楼
2024-04-07 18:04:45
客厅|Living room


客厅空间的墙面刷大白墙,这样简洁的设计,再通过家居软装的质感与色彩来点缀,体现出现代风格的简约干练。



在电视背景墙旁放置了一个玻璃收纳柜,用玻璃做为连接,空间更通透,生活也增添了灵动的气息。




将阳台纳入室内,无限拉近空间与自然的距离,在感受室外阳光的同时,屋外的绿色亦能成为家的风景。右侧利用墙体凹位做了一个收纳洗衣机的空间,用一个粉色的弧形墙面装饰,创作出一个运动休闲空间。佐以橘色沙发点缀其中,空间色彩层次感更强。


鲁门设计
鲁门设计

积分:-

注册时间:-

6楼
2024-04-07 18:06:31
餐厅|Restaurant


原进门的房间调整为新的中厨和独立杂物间,杂物间满足了屋主对大型物件的收纳需求,让房子其他空间更加整洁。





整个空间的调整,使得原来中厨的空间增加了好几倍,采光也更好,让烹饪更加舒适。



将原来的餐厨空间调整为西厨和餐厅,并设置了整排收纳柜,黑白的设计不仅在视觉上简单清爽,更是将收纳功能增加了好几倍。



鲁门设计
鲁门设计

积分:-

注册时间:-

7楼
2024-04-07 18:09:04
主卧|Master bedroom


主卧睡眠区以温馨、宁静为基调,简单的配色,给主人营造了一个舒适的睡眠环境。








主卫用玻璃门实现干湿分离,利用飘窗设置了浴缸。靠在窗边,看着风景,泡个澡,可以让一身的疲惫瞬间消失。



鲁门设计
鲁门设计

积分:-

注册时间:-

8楼
2024-04-07 18:09:44
儿童房|Children's room


童年时期,宛若星空,又蓝又美;童趣,宛若星辰,照亮了星空,使原本漆黑的星空透出点点亮光。这或许就是一个少年从小就喜欢天文的原因。为了满足孩子对天文的爱好,特意将原来的主人房改成了儿童房。



儿童房是一个梦幻的童趣世界,设计师结合孩子的喜好,用蓝色来表达天空和大海,给孩子创造一个更广阔的想象空间。同时,生活与学习结合,设计师安排了衣物收纳与学习等多元的空间功能,为成长留出空间。



鲁门设计
鲁门设计

积分:-

注册时间:-

9楼
2024-04-07 18:10:16
客卫|Guest bathroom


将公共卫生间的洗手台外移,满足了日常生活的便利。公卫统一中性调的颜色,干净利落兼具颜值与实用。




鲁门设计
鲁门设计

积分:-

注册时间:-

10楼
2024-04-07 18:10:39
鲁门寄语

现代人决定购买的房子,不仅是对居住的功能性满足,还包含对未来生活的预期和向往。

住房带来更多的应该是满足我们的情感诉求,是乐活的开始。


鲁门设计

Tel:13554726898

地址:福田区八卦岭工业区424栋520室


鲁门设计
鲁门设计

积分:-

注册时间:-

11楼
2024-08-01 12:29:00
二十年经验设计师亲力亲为,为你的装修保驾护航。



我爱我家GT
我爱我家GT

积分:-

注册时间:-

12楼
2024-08-01 19:06:25 来自Android手机客户端
  • 插入图片

    支持一次选择9张图片上传(使用Ctrl、Shift选中);

    支持jpg、png、gif,单张图片不超过10M,png不超过1M,gif不超过300K。

    • 继续添加

  • 提到好友

3(16px)

楼主最近发表

相关帖子

    大家都在看

    下载家在深圳APP

    关注家在公众号