标签:
点击标签查看相关内容
永安设计 | 深圳湾·恒裕滨城270m²湾景之巅的空中巴洛克
楼盘 Address | 深圳·恒裕滨城
户型 Apartment |四室两厅
面积 Square meters | 270㎡
风格 Style | 经典欧式
设计 Designer | 深圳市永安设计
业主是一位温文尔雅的年轻成功商人,有过多次置业和多次豪宅装修的经历,发现到了一定的高度和境界,家不单单是一个居住空间,而是一个能够体现家族底蕴,历久常新,不受外界影响和左右的精神环境,也是对内产生凝聚力,对外产生影响力磁场环境。这次的设计师有过和业主多次的合作,了解业主的想法,沟通过后觉得经典的欧式风格,可以来承载业主的期望。
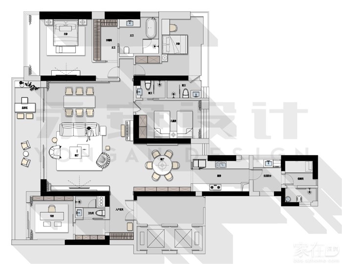
plane figure|平面图
户型以客厅为中心,主卧、次卧、餐厅和书房依次围绕,十余米宽的阳台提供了深圳湾一线海景,在湾区之巅,景色一览无遗,令人心旷神怡。
Porch|玄关
入户处是一块玉石雕刻的玄关屏风,两米多的宽高尺寸,预示了本案豪华程度,雕刻精工也彰显了业主对品质的追求。
Living Room|客厅设计以欧式风格为主线,营造典雅、高贵的气质,设计整体强调线形流动的变化,大理石墙在不同的纹理中产生律动,装饰线条和立体雕花像是记录文明的符号,穿越时空,在这个空间凝聚气场。
背景墙是一块专程从巴西运过来的奢石,价格不菲,这里并非攀比炫耀,而是设计必须使然,因为整个项目是暖色调大理石上墙,电视背景要一块纹理独特、冷色调和面幅够大的大理石,要能够作为整个方案的点睛之笔,业主和设计师通过各种渠道找到这种大理石,整个方案落地和谐完整。
奢华往往不单是物质价值的叠加,也是对精神满足的极致追求过程。
dining room|餐厅
餐厅以华贵的顶灯为中心,餐边柜用繁华的曲线边条装饰,与精致的大理石墙呼应,在水晶吊灯的灯光下,显得熠熠生辉。





粤公网安备 44030402000760号
