LDK一体+吧台挑空+走廊衣帽,单层60㎡复式逆袭奶油原木!
说在前面
本案为三口之家,屋主吕小姐也是房网粉丝,按照学区房的规则,小朋友本来可以上春蕾初中可以去百合外国语,吕小姐说不想让小孩太累,因为一个快乐的童年可以治愈一生,不快乐的童年需要一生去治愈,后面就有了这个新家的故事,合作过程很愉快,在此表示感谢。
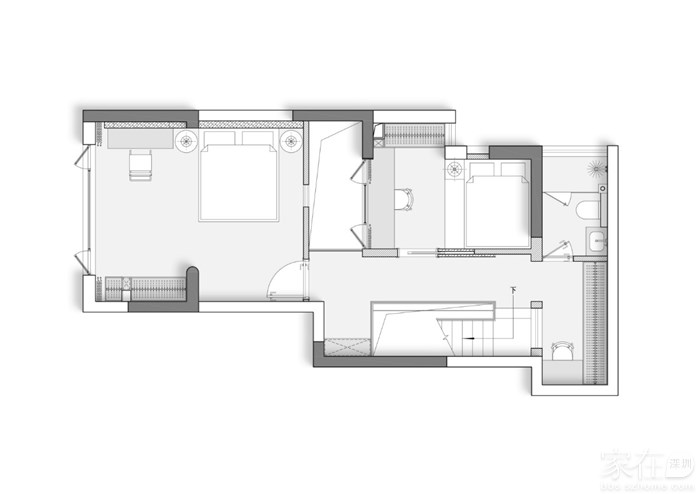
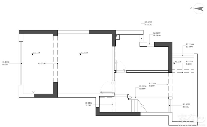
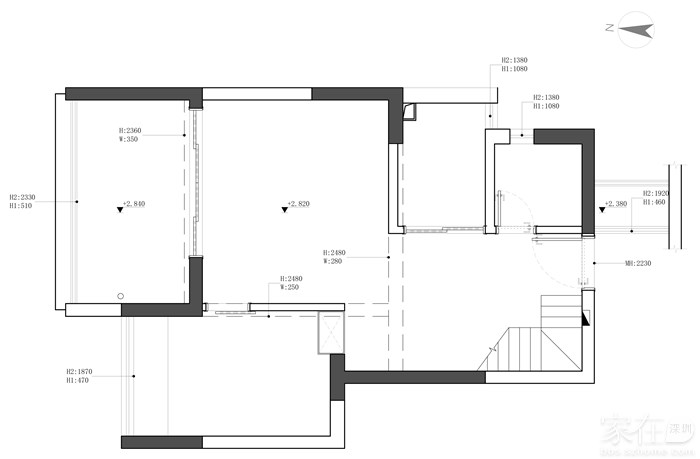
房子上下复式结构,在单层60㎡左右的情况下,要实现屋主所希望的通透、明朗等需求,我们对于整体结构做了一定程度上的改动。
首先改动楼梯位置,将玄关柜与其结合,节省空间,其次将厨房与客厅打开并以橱柜及吧台作为隔断,实现水平层面上的视野拓展,同时将吧台上方的楼层板做一个小巧挑空,在纵向维度上增加延伸,再将原本楼梯处的餐厅搬到阳台,原本局促的布局得以舒展开,一层空间整体的采光与通风都得到很大的改善。
二层主要作为屋主家人的起居室,利用楼梯上来后的阳台走廊打造衣帽间,增加储物容量,并在保证二层两间卧室的情况下,将一层房间改造为功能房,利用墨菲床实现平日小孩练琴学习与待客留宿等多重功能。
而在风格上,我们以简约纯白与原木为主,以打造一个视觉清简又不失温情的家,并在两间卧室内加入屋主喜爱的绿色,以偏好铸就最为私密的空间,陪伴入睡晨起,享受平凡日常的幸福与安宁。





粤公网安备 44030402000760号
