家在深圳,真实业主生活圈_房网论坛

0

|

17

195㎡大平层|寻一份素雅• 静时光

鲁门设计
鲁门设计

积分:-

注册时间:-

主楼
2024-01-06 13:39:19
标签: 点击标签查看相关内容

195㎡大平层|寻一份素雅• 静时光




设计

重新编织

生活的脉络

——



项目信息:
项目地址 | 深圳 南山

改造面积 |195㎡

设计单位 | 鲁门设计



说在前面

本案的业主家庭成员:夫妻二人+在读大学男孩;业主一家一直住在这个房子里,所以对这处房子有着深深的感情,它见证了这个家的温情、感动、欢笑与成长;房子格局上南北通透,两侧是干净、风景优美的绿地;但随着时间的流逝让装修显得陈旧,生活的演变让功能布局跟不上他们的步伐,物品积攒过多,空间利用不够高效。女业主向设计师表达了她的愿望——希望家居简洁素雅、舒适大气,且功能完备;我们设计师以此为核心,展开了精心的规划。








分享
0
鲁门设计
鲁门设计

积分:-

注册时间:-

沙发
2024-01-06 13:45:29
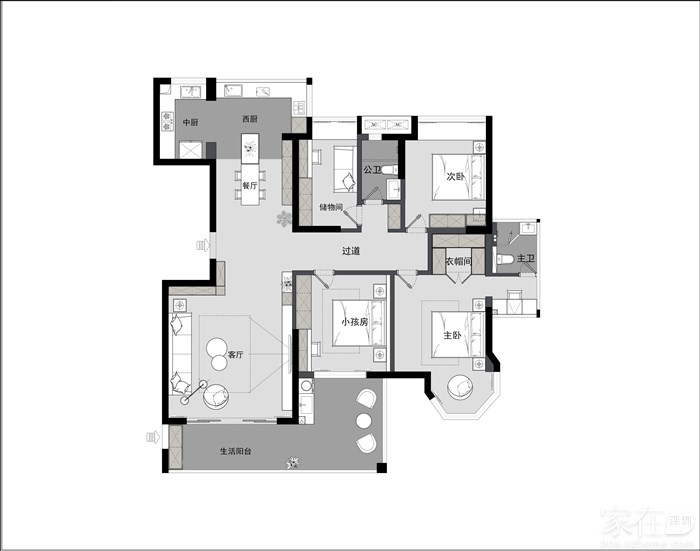
户型分析|House typ



▲原始户型图

原始格局非常方正,功能齐全

主要是装修陈旧、收纳空间不足



▲改造后户型图

对于大平层,设计师布局时尽可能让空间开放,更通透,动静分离,还要避免太空旷,失去居住的舒适性,将视野佳的优势发挥到极致

1、过道:卧室空间内收,将狭窄的过道扩宽,让进门就能感受到宽敞通透

2、厨房:将生活阳台改成西厨,中西厨的分区功能清晰可见,餐厅空间开阔,更符合大平层的气质

3、主人房:原卫生间位置不合理容易潮湿,外移到阳台,相对私密;衣帽间、化妆间独立出来,是对大平层的尊重

布局分区收纳足够多,满足业主对生活的各种需求

鲁门设计
鲁门设计

积分:-

注册时间:-

板凳
2024-01-06 13:48:16
玄关|Entrance

入户即感受到大平层的开阔与通透,宽敞的过道将餐厅与客厅分隔开;玄关处的到顶收纳柜设计也很人性化,增大了玄关的储物容量,出入也非常方便








鲁门设计
鲁门设计

积分:-

注册时间:-

地板
2024-01-06 13:50:12

客厅|Living room

客厅面积虽大,却不过分装饰

简单的主灯搭配干净利落的线灯

让这个空间看起来更加简约大气

原木配纯白,整体色彩结构为暖色系

符合女主人对家的设想-简洁素雅舒适




一幅画、一颗树、一只羊驼,为客厅增添了生动气息


简单的电视柜构造,加上大电视的配合,让朴素进行到底



鲁门设计
鲁门设计

积分:-

注册时间:-

4楼
2024-01-06 13:53:23
餐厅|Dining room

将生活阳台改成西厨,功能实用性更加强大

餐厅空间开阔通透,用餐时向窗外望去,美景尽收眼底






原木色的桌椅、餐柜

让整个餐厅空间氛围温馨舒适





鲁门设计
鲁门设计

积分:-

注册时间:-

5楼
2024-01-06 13:55:37

厨房|Kitchen

西厨的布局,从而使日常的烹饪、用餐成为享受生活的一部分



岛台的设计让空间实用性、观赏性更强



厨房整体采用灰色基调柜子瓷砖

高级大气的同时更加耐脏




鲁门设计
鲁门设计

积分:-

注册时间:-

6楼
2024-01-06 13:58:53

主卫|Master Guard

外移的卫生间功能齐全,壁挂马桶舒适又好清洁,卫生间壁挂洗衣机贴心又方便

鲁门设计
鲁门设计

积分:-

注册时间:-

7楼
2024-01-06 13:59:45
次卧|Second bedroom

床头结构梁的出现改变空间的平庸,让整个房子趣味更浓

一米八的大床不仅符合现在的学习生活

也预留了将来一家三口共度周末的可能




每个空间都做了不同灯光布置,满足各种氛围的光线要求,同时让空间层次感更强



鲁门设计
鲁门设计

积分:-

注册时间:-

8楼
2024-01-06 14:00:20
次卧|Second bedroom

落地窗矮柜可增加收纳,又可以让业主闲时半躺此处思考人生,大床,大衣柜必不可少







次卧|Second bedroom

落地窗矮柜可增加收纳,又可以让业主闲时半躺此处思考人生,大床,大衣柜必不可少



鲁门设计
鲁门设计

积分:-

注册时间:-

9楼
2024-01-06 14:01:12
客卫|Guest bathroom

门口的收纳柜,专门收纳卫生间用品,让生活更井井有条



简洁的卫生间布局,LED浴室镜依然照亮着每一个笑容





鲁门设计
鲁门设计

积分:-

注册时间:-

10楼
2024-01-06 14:03:08
过道|Aisle

开阔的过道把这个家的动静区分离

尽头的暖色调装饰画让这个空间更加富有艺术气息










鲁门设计
鲁门设计

积分:-

注册时间:-

11楼
2024-01-06 14:04:00

阳台|Balcony

充分考虑家庭收纳的需求,并将超大阳台布置成了一个功能齐全的生活辅助空间;阳台柜子,水盆一个也不能少,当然洗衣机和烘干机是标配;配上一颗郁郁葱葱的桂花,让阳台的也生机勃勃




鲁门设计
鲁门设计

积分:-

注册时间:-

12楼
2024-01-06 14:04:57

-关于我们|About us-


在这个世界里,设计不再只是为了满足基本的生活需求,更是对生活品质和审美趣味的提升,我们倾听着你对美的向往,将你的梦想化为现实。

我们拥有丰富的实践经验:深入理解室内设计的精髓,以创新、实用、舒适为设计理念,将室内空间打造成一个充满个性与灵性的艺术空间。

我们以作品来说话:一个时尚而又舒适的客厅,一个优雅而实用的餐厅,一个静谧而充满个性的卧室……每一个空间,都是我们精心设计的结果。我们运用色彩、光线等元素,将空间的美感发挥到极致。

我们注重每一个细节:从选材到施工,从软装搭配到空间布局,我们始终坚持高品质、精细化的原则。每个作品的成功,源于我们对每一个细节的完美追求。

我们的目标是让每一个客户都能享受到高品质的室内设计服务;我们相信,一次成功的室内设计,不仅是对美的追求,更是对生活的热爱和尊重。

走进我们的室内设计全案设计落地案例,你将感受到美的力量,启发你对生活的无限想象。

让我们一起,探索生活的无限可能





AWARDS  HONORS 获奖荣誉


2022年广东省装饰行业“岭南工匠”称号

2021年广东省装饰行业“功勋设计师”称号

华鼎奖2020-2021年度中国建筑装饰行业最具原创设计师作品奖2021年度原创室内设计师--深圳室内设计协会2021年度广东省装饰协会优秀空间设计金奖2020年度中国设计年度大会--精英设计师华鼎奖2019-2020年度中国建筑装饰行业最具影响力设计机构(住宅公寓空间类)金住奖2019中国(深圳)十大居住空间设计师中国建筑装饰协会2019年度最佳设计机构
鲁门设计
鲁门设计

积分:-

注册时间:-

13楼
2024-07-15 15:01:54
最近遇到很多朋友住着的房子,
有局部调整的需求,
又不想整体拆除装修。
不知道怎么样去弄,
所以我们推出这样一个服务。
局部改造设计 (按空间收费)
如果你家想局部设计改造:
厨房用电器不够用需要升级,
卫生间不好用需要升级,
房间功能需要调整或升级,
客餐厅储物需要增加,
家里软装搭配或灯光需要升级。
我们来给你设计并负责并落地。
按单独空间收取设计费,性价比超高。
服务对象:有局部改造需求的用户。(仅限深圳)
有需求或有兴趣的,可以详细了解咨询。


专业设计与施工
专业设计与施工

积分:-

注册时间:-

14楼
2024-07-19 12:55:59
用户被禁言
鲁门设计
鲁门设计

积分:-

注册时间:-

15楼
2024-08-01 12:25:46
二十年经验设计师亲力亲为,为你的装修保驾护航。



佳得宝建材
佳得宝建材

积分:-

注册时间:-

16楼
2024-08-01 18:45:00 来自Android手机客户端
我爱我家GT
我爱我家GT

积分:-

注册时间:-

17楼
2024-08-01 19:06:10 来自Android手机客户端
  • 插入图片

    支持一次选择9张图片上传(使用Ctrl、Shift选中);

    支持jpg、png、gif,单张图片不超过10M,png不超过1M,gif不超过300K。

    • 继续添加

  • 提到好友

3(16px)

楼主最近发表

相关帖子

    大家都在看

    下载家在深圳APP

    关注家在公众号