标签:
点击标签查看相关内容
【乐蜂实景案例作品】深圳-龙华区-金亨利·瑜璟苑-134㎡-现代风
本案设计风格为现代极简追求简洁而不简单,讲究空间开阔通畅力求通过设计形式和理性的设计方式,达到一种纯粹的,无杂质的艺术效果。同时强调功能为设计的中心和目的,讲究设计的科学性.删繁就简,去伪存真,以色彩的高度凝练和造型的极度简洁,在满足功能需要的前提下,将空间.人及物进行合理精致的组合。
客厅设计以现代简约风为主,无主灯的设计取消了传统的主灯设计,转而使用多种光源和灯具,如筒灯、灯带、壁灯等,以实现更加灵活、个性化的照明效果。这种设计方式能够避免刺眼和过于亮堂的感觉,让人感觉更加舒适和放松。
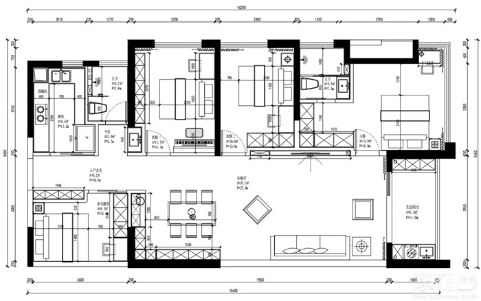
改造前:
①玄关处空间规划不合理,空间较为浪费;
②卧室房门开口在一侧不整体;
改造后:
①入户处设置多功能房,避免入户玄关处面积浪费,合理利用空间;
②次卧二与主卧房门设置于客厅两侧,做隐形门处理,减少视线干扰;





粤公网安备 44030402000760号
