《阳光洒满》-宝安·尚都花园,意式风
本案业主是位于宝安区尚都花园的一户家庭,他们对意式风格情有独钟。业主追求简约时尚的生活方式,并希望打造一个充满艺术氛围和家的温馨感的居住空间。意式风格追求的是一种简洁、精致和高雅的生活方式。房屋内部采用的是大面积的中性色调。给人以宁静、舒适的感觉。同时,通过选用意式风格的家具和装饰品,营造出一种浪漫又充满艺术气息的居住环境。
《阳光洒满》
《Yangguangsaman》
项目面积/Area:151㎡
项目地址/Location:深圳·宝安-尚都花园
风格/style:意式风
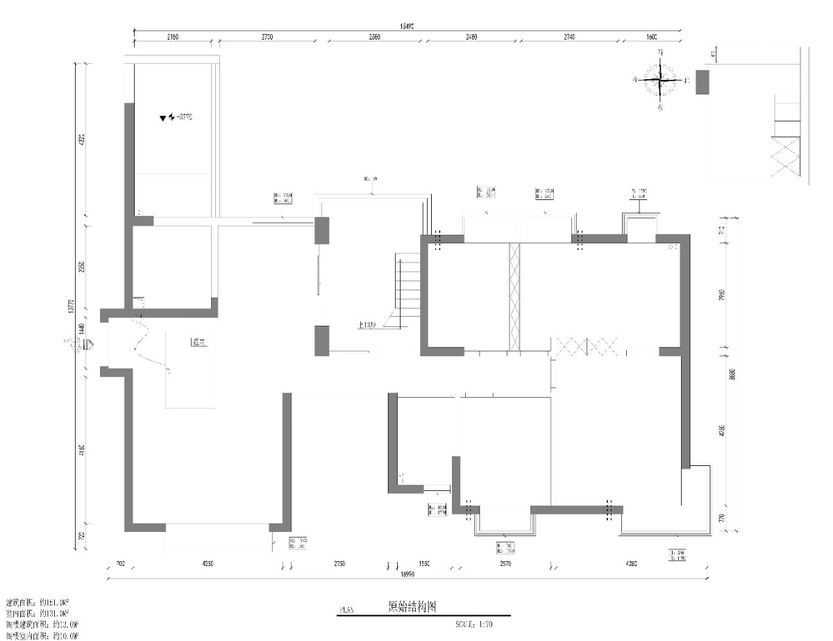
户型分析
改造前:
①业主有西厨需求,希望可以拥有中西厨厨房
②原始楼梯形状不太好看有些占空间
③阳台利用率低
④孩子们需要单独的观影空间
改造后:
①合理分配厨房和阳台的空间比例,增设西厨区
②更改楼梯位置和楼梯的形式,透明的旋转楼梯配置灯带成为空间的一个点缀
③将阳台改造成室内的休闲区,设置吧台。吧台、承重柱、餐桌形成一个整体
④更改楼梯位置后,使二楼的空间利用率提高,将原本堆放杂物的二楼空间设计成影音室,满足孩子们的观影需求
客厅
客厅的主色调为黑、灰和原木色,没有主灯设计,而是采用悬浮顶和暖管线灯营造整体暖色调,吊顶中间还设计了一组暖光射灯。为了让客厅的视觉空间得到延伸,阳台设计了飘窗,这样客厅看起来更加通透、明亮。
背景墙采用线条和原木设计,呈现出浓厚的线条感,原木背景墙上还嵌入了灯带,增加了氛围感。客厅设计了黑色的一字形沙发,左边还放置了黑色简约的落地灯,绿植和自由的小人装饰也是点睛之笔。
电视嵌入了原木背景墙,并且背景墙还可以用来收纳物品。设计了黑色的隔板灯带来丰富背景墙的层次感。同时,壁炉元素的融入让整个客厅更加高档,营造了优雅浪漫的居家氛围。
入户采用悬空鞋帽柜设计,与传统的入户鞋柜设计有所不同,新颖而有趣。摆脱了进门满是鞋的尴尬,业主可以方便地坐在小凳子上换拖鞋。右边不仅可以用来装饰,还可以放置业主心爱的平衡车。





粤公网安备 44030402000760号
