标签:
点击标签查看相关内容
《光影流转》-福田·碧海云天163m² 轻奢风
本案业主追求奢华、宽敞的家居风格。业主希望改造后厨房利用率得到增加,狭长的走廊空间希望得到改善,最主要的是每个房间能合理分配还有舒适的休息空间。通过设计师与业主的沟通交流,精心地设计了每个房间,使其充满层次感和高级感,赢得了业主的青睐。
《光影流转》
《Guangyingliuzhuan》
项目面积/Area:163m²
项目地址/Location:深圳·福田,碧海云天
风格/style:轻奢风
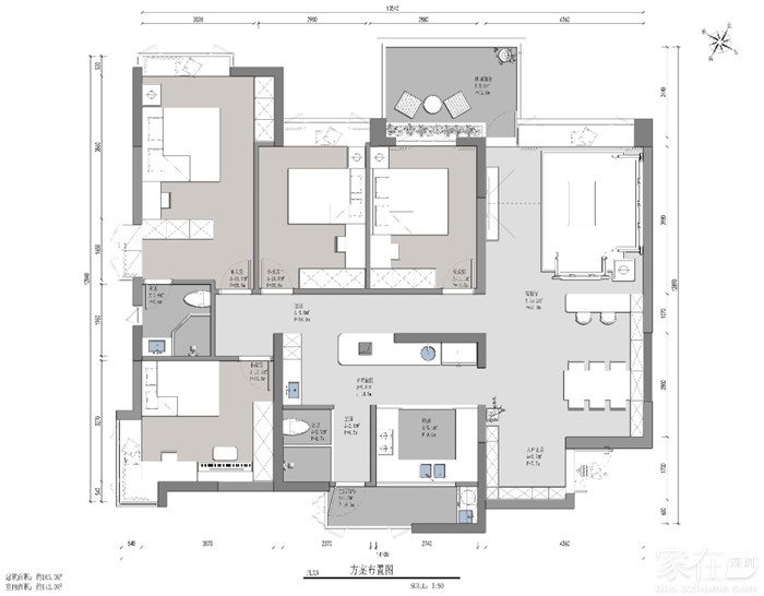
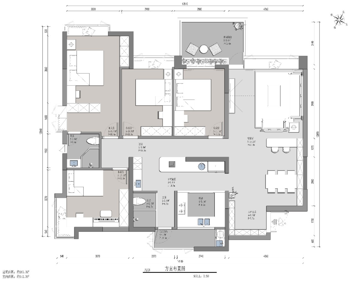
户型分析
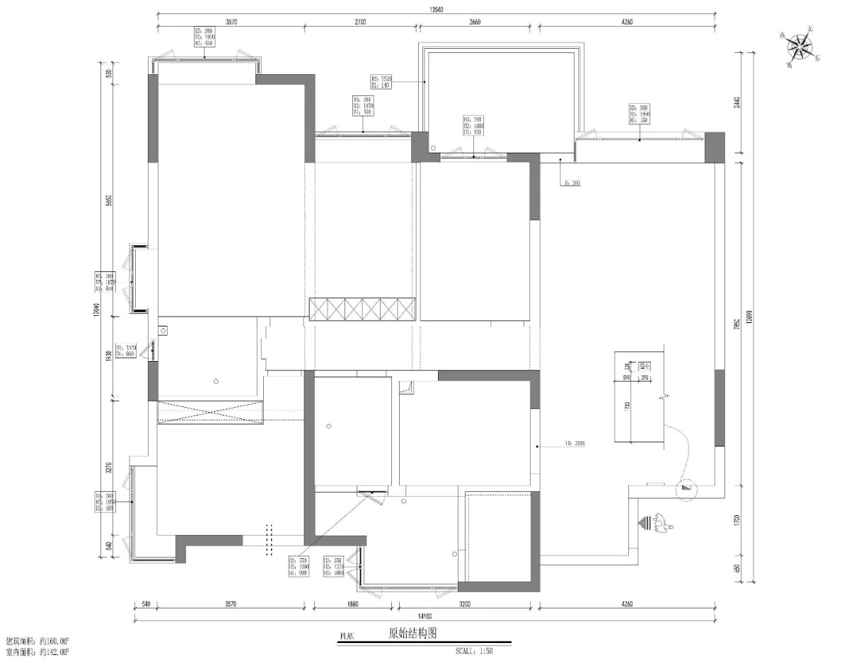
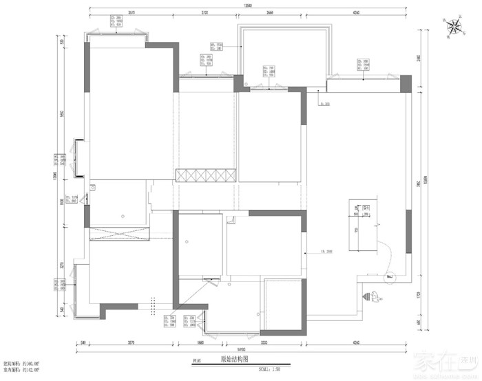
改造前:
①原始户型厨房很大但利用率不高、储物少
②原始卧室大小分配不太好
③阳台需要保留
④过道狭长
改造后:
①改造后,更改厨房位置,增加了厨房采光,u字形厨房增加储物
②利用原承重墙,设置中岛西厨区,使原本狭长采光不好的过道区功能化
③合理的分配每个卧室的大小,使得每个空间都舒适
④保留双阳台,兼顾洗衣晾晒和接待亲朋
客厅
入户设计了线灯和射灯搭配,形成优美的视觉效果。
悬空鞋柜可放置拖鞋,中间镂空处设计了钥匙收纳空间,利于生活的整洁有序。
客厅使用哑光飘花大理石地砖,营造出高级质感。利用无主灯设计和隐形线灯和射灯,增加了空间的层次感和光影变化。阳台设计独立窗户和门,不与客厅打通,也保证了采光的优秀。电视背景墙使用大块大理石装饰,体现出豪华的品位。悬浮电视可收纳柜、可展示书籍和小装饰物,使电视墙与周围家居协调统一。
沙发区超长的半围沙发呈现出舒适的氛围。咖色、杏色成为这里的主色调,体现出质感。
巧妙的线条设计增强背景墙的艺术感,使用彩色岩板和透明收纳柜收纳书籍或者摆放望远镜,更为实用。黑色原木和透明桌角装饰的茶几更是精致流畅。





粤公网安备 44030402000760号
