家在深圳,真实业主生活圈_房网论坛

0

|

5

春绿 | 不设限的空间

禾颖设计
禾颖设计

积分:-

注册时间:-

主楼
2023-03-25 15:07:41
标签: 点击标签查看相关内容

春绿 | 不设限的空间


意正浓,把一抹绿意引入家中。

开阔的空间加上良好的采光,让整个家都被一种无拘束的轻松感环绕着,越过四季,让温柔与惬意停留在这里





分享
0
禾颖设计
禾颖设计

积分:-

注册时间:-

沙发
2023-03-25 15:08:21

PART·1

第一眼的心动


原始无遮挡的入户改成过道玄关,不做过多的装饰,一片素净的白配一抹绿。穿过绿色的过道,感受生活的仪式感及设计细节



禾颖设计
禾颖设计

积分:-

注册时间:-

板凳
2023-03-25 15:11:33

PART·2

不设限的空间


穿过玄关,室内背景转为清新的浅绿色。生动的颜色转换让屋内呈现一种活力满满的状态。






客厅背景十分简单,简约的吊顶配合无主灯设计,化繁为简。L型沙发最适合躺着放空,一抹亮眼的柠檬黄,让整个客厅更为纯净简洁,带来张弛有度的空间感。





开放式的空间设计,把餐厅和客厅与阳台的空间连成一体。公共区域通铺哑光瓷砖,自带质朴的舒适感、行走其间,仿若闲庭信步在自然中



禾颖设计
禾颖设计

积分:-

注册时间:-

地板
2023-03-25 15:12:44

PART·3

绿意生机的延续


书房延续绿意配色,深绿与浅绿搭配,浓淡相宜,享受空间带来的惬意。






禾颖设计
禾颖设计

积分:-

注册时间:-

4楼
2023-03-25 15:18:17

PART·4

简洁的栖息之所


卧室铺贴人字拼木地板,就能打破空间的平淡。

温馨木色与沉稳灰绿色的碰撞,延伸出一片自由的小世界。







浅色与原木是温柔格调的最佳搭档,简洁温柔之余,构筑随遇而安的休憩时光;




另一间卧室依旧简洁,粉色的软包床带着可爱的俏皮感,配饰与墙上的挂画相呼应,漫不经心的方式更能显出设计的出彩。





公卫洗手盆外移,做了干湿分离设计。岩板台面更显示出空间的精致感






禾颖设计
禾颖设计

积分:-

注册时间:-

5楼
2023-03-25 15:18:57

PART·5

项目信息 改造亮点


项目名称 | 圆梦园空间
改造项目地点 | 深圳·福田
项目面积 | 127㎡
竣工时间 | 2023年01月
设计机构 | 禾颖室内空间设计

主要选材 | 木地板、肌理漆、木饰面、布艺




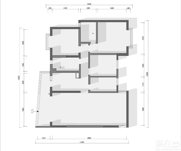
【原始结构图】



【平面布置图】


调整功能区分布,移动餐厅的一堵隔墙,把书房挪到入户旁边,不仅增加了一个入户玄关,客餐厅空间感也更通透、大气。沿着墙体打造收纳柜,整齐有序的墙面收纳柜让家更精致简洁,生活舒适感也随之增强。


  • 插入图片

    支持一次选择9张图片上传(使用Ctrl、Shift选中);

    支持jpg、png、gif,单张图片不超过10M,png不超过1M,gif不超过300K。

    • 继续添加

  • 提到好友

3(16px)

楼主最近发表

相关帖子

    大家都在看

    下载家在深圳APP

    关注家在公众号