实景案例丨天一名居90m²现代简约,别有洞天
对于生活,每个人都有自己的加减法,按照自己的方式去布置空间,才能掌握自己的生活。本次的业主是一对小年轻,喜欢冷调和黑白,也喜欢空间繁和简相得益彰。设计和生活,本来就没有公式可以遵循,有时候突破常规,反而会让人惊艳。
《收藏家》
《Collector》
项目地址/Location:深圳福田·天一名居
项目面积/Area:90㎡
风格/style:现代简约
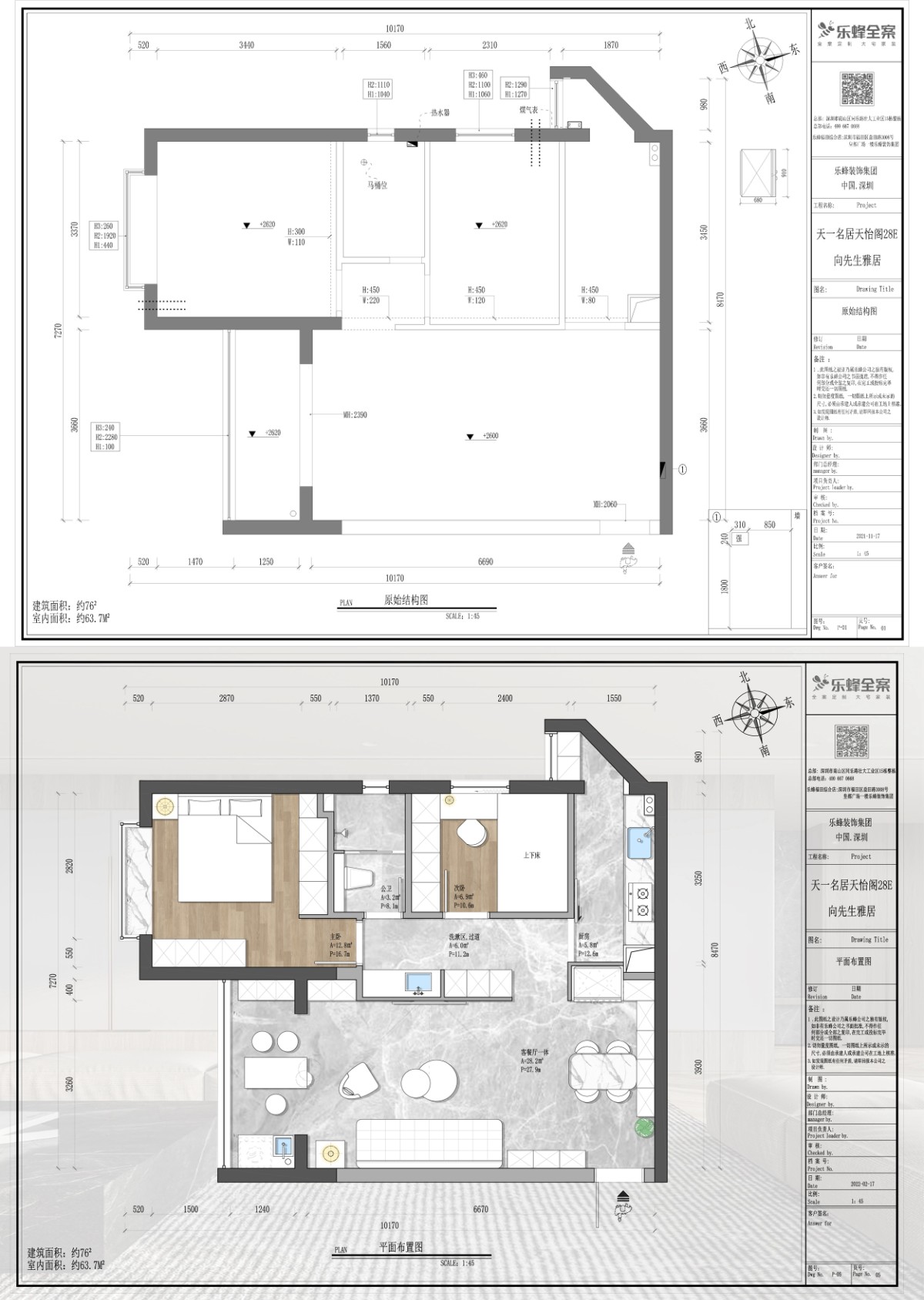
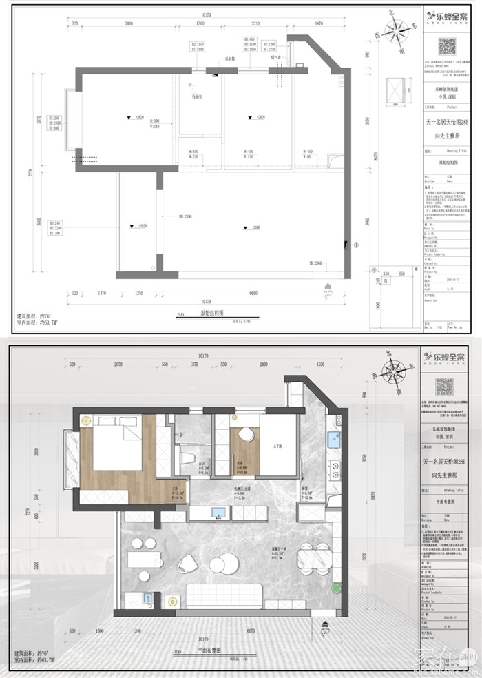
#户型分析#
原始户型:
①卧室房间直接对着公共区域,没有隐私性。
②客厅只有一面背景,难以进行常规布置。
③客厅阳台压缩了视觉空间,客厅显得拥挤。
改造后:
①在客厅和房间之间制造隔断,既能拥有电视背景墙,又能满足隐私需求,也能增加储物空间。
②将客厅和阳台隔断拆除,客厅通透感得以加强。
#玄关#
收藏需要被展示,业主拥有收藏鞋的爱好,封闭的鞋柜不便于收藏,独立的透明鞋盒防灰也更方便取放。入户左侧一组矮柜用于日常鞋柜使用,推拉门开合顺手,在颜色和材质的选择上,深色实木能够很好地和餐厅进行融合。
#客厅#
些许商务工业风的加入,整个客厅干练的气质脱颖而出。电视背景选择白色乳胶漆,这样才能更好衬托深沉的软装选材。
由于电视背景是新建的隔断,压缩了客厅的一部分进深,所以没有设计收纳柜体。想要既不过时,又简约的背景设计,大白墙当然是首选,在深色更多的客餐厅空间内,纯白电视背景墙绝对地亮眼,这就是化简为繁的魅力吧。
沙发背景选择莫兰迪色系,射灯光束的加入使这幅作品得以完成。沙发选择了三人位的皮质沙发,配上咖啡色懒人沙发,自由和精致,肆意和洒脱。
全屋极细的踢脚线和垭口、隔断结合,线条对格局勾边,凸显格局的错落有致。
无主灯设计已不稀有,但仍是百搭,空旷的顶面和空旷的天空一样永远惹人喜爱。
地面运用浅灰哑光砖,颇有一丝复古韵味,在这个被注入工业气息的室内,适当的糙面才更加适配。
#阳台#
阳台区域规划成为茶室和休闲区,日常的修身养性有它的归处。阳台上方设计了升降晾衣架,将其隐藏在吊顶内,不破坏整体美感。
在室内喝茶也能感受到室外的温度和微风,在现代生活中忙里偷闲体会古人的娱乐,实在惬意。阳台背景采用木饰面板,对客厅形成无形的视觉隔断,风格也更加贴合茶室的古朴。





粤公网安备 44030402000760号
