《迎新》-坂田·大族云峰103m²现代简约,生活将焕然一新
本案业主为三口之家,参观了我们的多个案例后,对我们的设计和做工都有很高的评价,通过和我们设计团队的沟通,在设计和改造方面达到了高度的一致,所以很快就决定合作了。业主对家中细节和风格要求很高,喜欢无主灯的设计,也偏爱智能家居。因为业主喜欢居家烹饪,所以对于厨房的改造也有一定要求。我们结合了业主的喜好和房屋自身的条件后,为业主量身定制了这套方案,最近也终于落地了!
项目地址/Location:深圳坂田·大族云峰
项目面积/Area:103m²
风格/style:现代简约
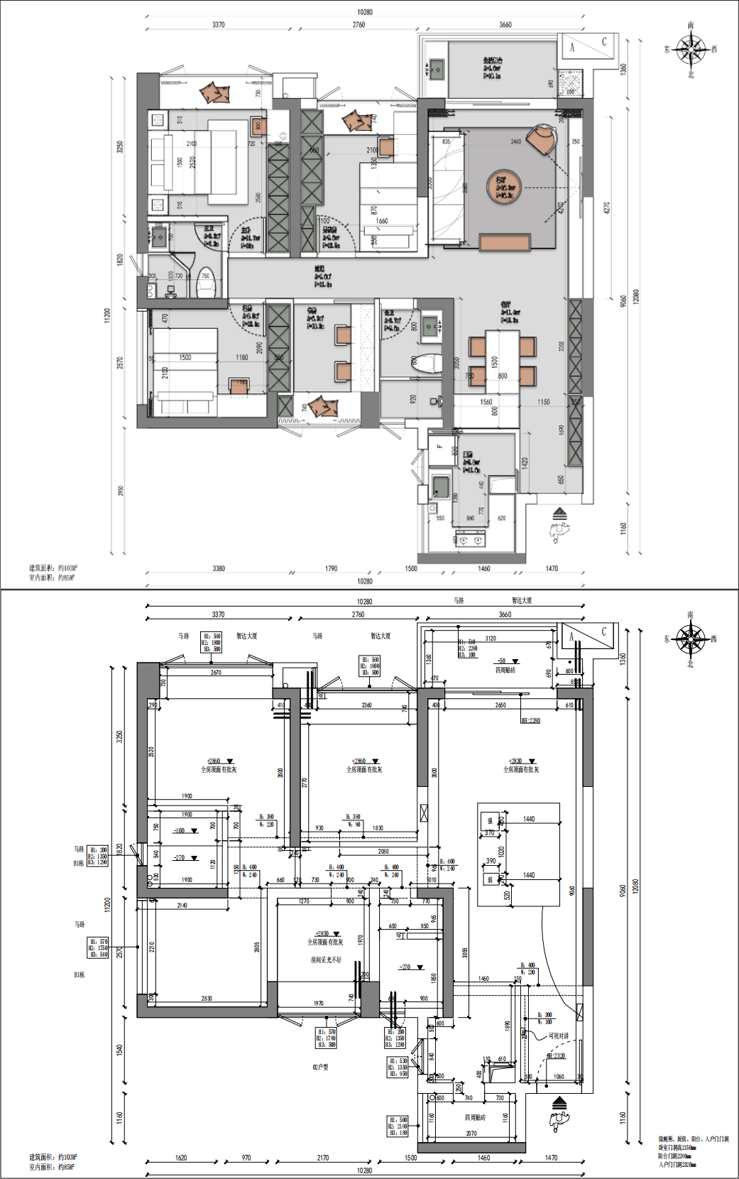
户型分析
原始户型:
①餐厅空间太小,厨房占据了一部分餐厅面积。
②厨房外的阳台面积小,不好利用,占据厨房空间。
③和书房连接的次卧面积小,不好设计收纳。
改造后:
①缩短厨房和玄关的隔断,减少厨房对餐厅空间的占用。
②将厨房和阳台间隔断拆除,将厨房和阳台合并,扩大厨房空间。
③改动次卧和书房隔断,将更多空间纳入次卧,次卧能够设计更多收纳空间。
Living room
电视背景选择了电视柜的形式,封闭式和开放式的组合柜,收纳格局和收纳形式更加丰富。开放的格间可以用来摆放装饰和摆件,为电视背景增添更多装饰空间。封闭式收纳,容量丰富,补充了家中其他区域的收纳功能。原木和米色的搭配,休闲和时尚的最佳诠释。
沙发背景选择墙咔和木饰面板拼接组成,颜色的选择和电视柜一致,打造前后呼应的效果。沙发选择了咖啡色真皮沙发,高脚设计方便扫地机器人工作,真皮材质打造立体的造型,也更方便进行清洁。
茶几选择了小巧的造型,保留了客厅的大部分空间,简单之余也富有设计感。
客餐厅选择了大砖通铺的形式,浅灰色连纹亮面瓷砖,反射家中的光线,客餐厅显得更加晶莹剔透。冷色调能够增加家中的整洁质感,满足了业主对于家中保持干净通透的需求。
餐厅
Dinner room
经过改造后,餐厅舒展开阔了许多,餐厅的视野也提升了一倍。餐厅两侧设计了一面为背景,一面为餐边柜的形式,在颜值和实用性方面做了最完善的设计。
餐边柜设计为和电视柜一体,中间用高柜隔开作为分割。黑玻设计的酒柜用来收藏酒水和茶具,亮丽精致,给餐厅构成另一面独特风景。
厨房
Kitchen
厨房设计为全白色,能够减少厨房的压抑感。u字型厨房布局实现空间利用最大化,洗、切、炒各项功能一应俱全。因为将冰箱外移厨房,厨房内部空间得到释放,使用起来更加轻松自在。





粤公网安备 44030402000760号
