家在深圳,真实业主生活圈_房网论坛

0

|

14

108m²四室两厅|六口之家的归心之所,空间利用最大化!

鲁门设计
鲁门设计

积分:-

注册时间:-

主楼
2022-09-20 13:58:19
标签: 点击标签查看相关内容

108m²四室两厅|六口之家的归心之所,空间利用最大化!




项目信息:
项目地址 | 深圳 宝安
项目面积 | 108㎡
项目户型 | 四室两厅两卫
设计单位 | 鲁门设计


说在前面
本案是一个六口之家,两个可爱的女儿,父母偶尔会过来短暂小住。房子之前一直用来出租,只是简单装修,现在自住希望家能和自己的喜好习惯是贴合的,所以找到了我们;房主希望家是简约有格调的,并不拘泥于风格,需要足够多的收纳空间,用舒适与实用主义定义“家”的功能,还原生活本真。结合业主家的成员结构以及了解到的生活习惯需求,设计师将整个空间重新优化布局,改造成四房,让两个女儿都有自己独立的私密空间,家人的关系亲密而有间。

分享
0
鲁门设计
鲁门设计

积分:-

注册时间:-

沙发
2022-09-20 14:00:48
户型分析|House type analysis


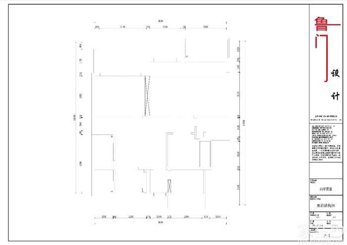
▲原始户型图


户型很方正,空间利用率高
但每个空间狭小且只有一个卫生间
满足不了业主一家六口日常所需


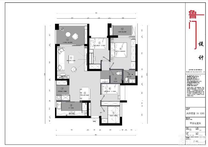
▲改造后户型图


1、玄关:大门适当右移,留出左边空间做入门鞋柜玄关柜
厨房:拆分原来的生活阳台,一部分扩大厨房空间,另一部分做一个小的家政间,把冰箱,洗衣机,烘干机,扫地机器等其他杂物安放在此处
2、客厅:打通阳台做折叠门,让客餐厅空间通透明亮卧室:主卧和儿童房的大门位移,留出卫生间空间
3、卫生间:一个卫生间改造成两个,客卫洗手盆外移,虽然都很紧凑,但功能齐全
4、收纳:小户型想要空间干净开阔,收纳就显得十分重要;每个空间都定制收纳柜,让每一件物品都有大致的分类和区域,就算东西再多,只要把物归原处,也能井井有条
5、灯光:家的氛围感不仅体现在软装搭配,更与光线紧密相关,精心设计的灯光分区,不同区域不同的光源需求。线灯为主,搭配一些特色灯光和灯具,同一个空间可以有不同的氛围,让这个家更有“归属感”


由于面积限制,没有多余空间当书房,所以我们在主卧和两个儿童房都有定制书桌柜,让家里的书籍有藏身之处,同时方便主人办公与孩子独立学习
鲁门设计
鲁门设计

积分:-

注册时间:-

板凳
2022-09-20 14:02:17
玄关|Entrance


大门位移后玄关处可塑性更高,提前预留电线做感应灯
底部悬空式设计,留出空间放家居鞋,进出门方便快捷
卡座换鞋区,坐着换鞋更舒适,且适当留空减少进门的局促感
鞋柜做了一个有趣的弧形设计,增加内部空间的同时让整个空间变得优雅起来


鲁门设计
鲁门设计

积分:-

注册时间:-

地板
2022-09-20 14:03:18
餐厅|Dining room


打通了生活阳台之后餐厅的空间视觉延伸更强,采光更好,750*1500地砖满铺整个公共空间,大气又通透,与精心挑选的大理石餐桌相互呼应;无主灯设计,光源来源于吊灯+线灯,用餐氛围拉满~





鲁门设计
鲁门设计

积分:-

注册时间:-

4楼
2022-09-20 14:04:10
厨房|Kitchen


厨房空间扩大后,U型设计把各个功能全部安排到位,因为没有单独的西厨空间,所以蒸、烤箱等电器利用高柜嵌入,满足女主人对美食烹饪方式的多样性。岩板的台面和客餐厅大砖通铺进厨房,让整体感觉更显高级、大气





鲁门设计
鲁门设计

积分:-

注册时间:-

5楼
2022-09-20 14:04:53
客厅|Living room


客厅空间简洁舒适,沙发墙饰面板和侧面装饰柜融为一体;悬挂式的小巧电视柜底部暗藏灯带,空间瞬间变得轻盈灵动起来,墨绿色的皮质沙发搭配具有金属元素的水墨石桌几,沉稳中不失精致大气;灯光上采用吊灯基础照明,壁灯、线灯、嵌入式射灯氛围照明,营造柔和光线与光影层次感





鲁门设计
鲁门设计

积分:-

注册时间:-

6楼
2022-09-20 14:05:19
阳台|Balcony


阳台大胆定制一面复古蓝收纳柜,搭配金属框把手,一整个高级感满满~


鲁门设计
鲁门设计

积分:-

注册时间:-

7楼
2022-09-20 14:06:20
主卧|Master bedroom


卧室空间不大,挑选了床头薄的1.8米大床,暖色调的背景墙温馨柔和;到顶衣柜设计,给衣物足够大的收纳空间。主卧的布局设计,既满足日常生活的便利性又营造舒适的睡眠空间









鲁门设计
鲁门设计

积分:-

注册时间:-

8楼
2022-09-20 14:06:48
主卫|Main guard


空间虽小但功能齐全


鲁门设计
鲁门设计

积分:-

注册时间:-

9楼
2022-09-20 14:07:58
大女儿房|Eldest daughter's room


两个女儿房,分别定制了不一样的兔子床设计,充满了童趣。衣柜、书柜、书桌以及床头柜一体化定制设计,功能齐全,既能好好休息,又可以安静学习。适当的紫色搭配,体现十几岁少女越来越深邃的思想又不失孩子的童真。





鲁门设计
鲁门设计

积分:-

注册时间:-

10楼
2022-09-20 14:08:33
小女儿房|Little girl's room


小女儿的房间更加可爱温馨,整体采用粉白色系,每个小女孩都有个粉粉的公主梦,衣柜上的拱门造型像极了梦中的那扇大门~





鲁门设计
鲁门设计

积分:-

注册时间:-

11楼
2022-09-20 14:10:07
父母房|Parents room


因老人只是偶尔短暂居住,不需要太多装饰,空间色彩偏浅色系,会让人内心更加宁静


鲁门设计
鲁门设计

积分:-

注册时间:-

12楼
2022-09-20 14:10:37
卫生间|Bathroom


由于是一个卫生间改成2个,空间上比较紧凑,洗手台外移减少湿区的逼仄感;因为外置洗手盆对着女儿房间,所以镜柜选择了风水柜



零点装饰
零点装饰

积分:-

注册时间:-

13楼
2022-09-22 10:04:49

鲁门设计
鲁门设计

积分:-

注册时间:-

14楼
2024-08-01 12:26:48
二十年经验设计师亲力亲为,为你的装修保驾护航。



  • 插入图片

    支持一次选择9张图片上传(使用Ctrl、Shift选中);

    支持jpg、png、gif,单张图片不超过10M,png不超过1M,gif不超过300K。

    • 继续添加

  • 提到好友

3(16px)

楼主最近发表

相关帖子

    大家都在看

    下载家在深圳APP

    关注家在公众号