家在深圳,真实业主生活圈_房网论坛

0

|

18

【佐佑设计】82m²毛坯小复式打造日式小清新 | 微微阳光

佐佑设计
佐佑设计

积分:-

注册时间:-

主楼
2021-09-23 14:59:14
标签: 点击标签查看相关内容

【佐佑设计】82m²毛坯小复式打造日式小清新 | 微微阳光



项目地址:深圳丨博林天瑞
项目面积:82m²丨复式两居室
设计风格:日式清新
分享
0
佐佑设计
佐佑设计

积分:-

注册时间:-

沙发
2021-09-23 15:06:48

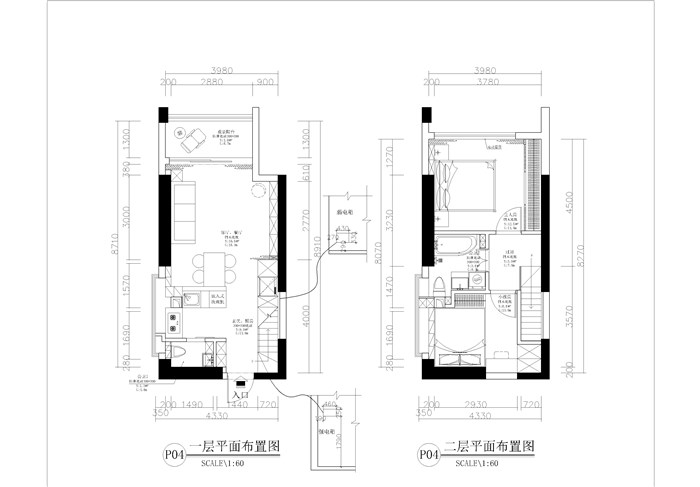
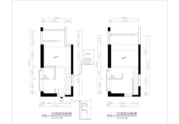
- 户型图 -



原始结构图



平面布置图



改造前毛坯房,入户玄关、客厅的状态。



改造前毛坯房,二层过道看次卧、主卧的状态。

设计说明:
本案为了满足客户的需求,利用减除法优化空间格局,让动线变得更加舒适流畅,空间更加明亮。

1、原厨房与卫生间把照往过道的光线遮挡,改变优化原动线,重新区域划分,形成了开放式厨房、餐厅、客厅区域动线。

2、原入户过道动线不方便,闷闷的长廊,将原厨房、一楼卫生间与过道之间隔墙拆除,厨房墙体减除为开放式,借光过道,过道采光明亮,动线流畅,方便。
佐佑设计
佐佑设计

积分:-

注册时间:-

板凳
2021-09-23 15:13:08

- 玄关 -



简单的墙体改动,增加一面大容量的鞋柜,原木与纯白的结合,如此的简洁、舒适。



入户过道的墙打通,动线顺畅,不再是闷闷长廊的过道,整体光线明亮。



实木扶手屏风,增加玄关与楼梯的互动连接。



灵活利用楼梯底部的位置,增添了不少收纳空间的同时,冰箱也有属于它最好的归宿。
佐佑设计
佐佑设计

积分:-

注册时间:-

地板
2021-09-23 15:20:06

- 餐厅 -



空间与空间之间的微妙连接,让家人之间的关系更加饱满。



实木餐桌椅与墙面彩色六角砖营造一个清新、自然的用餐环境,让人轻松的享受美食。



实木餐桌椅与墙面彩色六角砖营造一个清新、自然的用餐环境,让人轻松的享受美食。



餐厅的细节
佐佑设计
佐佑设计

积分:-

注册时间:-

4楼
2021-09-23 15:29:39

- 客厅 -



厨房看客餐厅的细节



每个区域的微妙连接,让家人之间的关系更加饱满,客厅用色干净简洁。





让空间避免单调沉闷,橡木人字铺木地板也增添空间的层次感,以棕色装饰画营造一个温馨、舒适的交流环境,让人更能释放内心。
佐佑设计
佐佑设计

积分:-

注册时间:-

5楼
2021-09-23 15:38:39

- 厨房 -







开放式厨房,基本功能齐全,划分明确,操作动线合理流畅,彩色六角砖与白色台面搭配,空间干净整洁。
佐佑设计
佐佑设计

积分:-

注册时间:-

6楼
2021-09-23 15:43:42

- 一层卫生间 -



白色的墙砖和灰的小方砖、自然元素与黑色金属元素的结合,通透明亮,给人舒适自然之感。



黑色入墙式水龙头,搭配小巧的洗手盆,日系卫生间的体现。
佐佑设计
佐佑设计

积分:-

注册时间:-

7楼
2021-09-23 15:49:09

- 楼梯过道 -







楼梯过道的简约造型,实木立柱屏风,增加玄关与楼梯的互动连接。



楼梯过道看儿童房 #日式 #实木地板 #人字拼铺
佐佑设计
佐佑设计

积分:-

注册时间:-

8楼
2021-09-23 15:53:58

- 儿童房 -



用柔和的色调,适当留白与简洁的家具,为童年留下清澈纯粹的空间,打造阅读区与玩耍区。



儿童房细节,设置了充足的收纳空间。
佐佑设计
佐佑设计

积分:-

注册时间:-

9楼
2021-09-23 15:58:55

- 主人房 -



卧室墙面以白色为主,木色面护墙和橡木色木地板添加空间的层次,营造一个安宁、自然的休憩空间。



床头书柜细节,良好的阅读习惯,充实自身的同时,也可以帮助提高睡眠质量哦。




设置简易的衣橱,让储物空间更为灵活,可以根据房子主人的需求随时变换。
佐佑设计
佐佑设计

积分:-

注册时间:-

10楼
2021-09-23 16:03:57

- 二层卫生间 -



二楼卫生间折叠门,黑色窄边与长宏虹玻璃,如今成为主流。





二楼卫生间的整体色调,白色的墙砖搭配条纹蓝绿色的砖、灰色地砖自然元素与现代金属元素的结合,给人舒适自然之感。
佐佑设计
佐佑设计

积分:-

注册时间:-

11楼
2021-09-23 16:07:29
- 灵动空间 -





高丽住建艳子
高丽住建艳子

积分:-

注册时间:-

12楼
2021-10-01 17:20:07
清新而又温馨
佐佑设计
佐佑设计

积分:-

注册时间:-

13楼
2021-10-02 13:28:47
谢谢关注
引用12楼高丽住建艳子的发言:
清新而又温馨
生活家地板256
生活家地板256

积分:-

注册时间:-

14楼
2021-10-06 13:08:03

佐佑设计
佐佑设计

积分:-

注册时间:-

15楼
2021-10-09 15:48:20
谢谢关注
引用14楼生活家地板256的发言:

佐佑设计
佐佑设计

积分:-

注册时间:-

16楼
2021-10-24 22:12:04 来自iPhone客户端
谢谢大家
2013范
2013范

积分:-

注册时间:-

17楼
2021-10-24 22:21:42 来自iPhone客户端
muoubushuo
muoubushuo

积分:-

注册时间:-

18楼
2022-12-27 18:36:50
你好,我最近想请设计师,方便时回复联系方式好吗?谢谢。
  • 插入图片

    支持一次选择9张图片上传(使用Ctrl、Shift选中);

    支持jpg、png、gif,单张图片不超过10M,png不超过1M,gif不超过300K。

    • 继续添加

  • 提到好友

3(16px)

楼主最近发表

相关帖子

    大家都在看

    下载家在深圳APP

    关注家在公众号