家在深圳,真实业主生活圈_房网论坛

0

|

22

【佐佑设计】120m²轻奢风丨极致优雅的生活态度

佐佑设计
佐佑设计

积分:-

注册时间:-

主楼
2021-09-23 13:51:50
标签: 点击标签查看相关内容

【佐佑设计】120m²轻奢风丨极致优雅的生活态度




项目地址:深圳丨海雅缤纷城
项目面积:120m²丨三居室
设计风格:轻奢风格
分享
0
佐佑设计
佐佑设计

积分:-

注册时间:-

沙发
2021-09-23 13:55:07

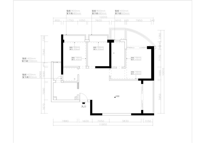
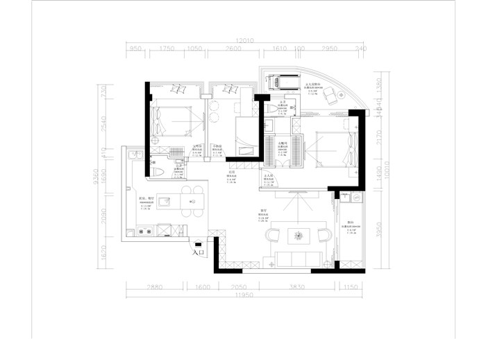
- 户型图 -



原始结构图



改造要求亮点
1、原来的厨房光线太暗和小,扩大厨房和借光,使用减法。
2、利用主卫与过道空间增加法,新规划出主卧衣帽间的区域。
3、家庭成员多,有老人及小孩,需要保留两个卫生间。


佐佑设计
佐佑设计

积分:-

注册时间:-

板凳
2021-09-23 14:07:49

- 客厅 -




轻奢风格在空间上来说既没有过于繁复的造型,亦没有丰富色彩的叠加,而是以一种直撩心底的优雅魔力,给人带来轻松舒适、温馨大气的感觉。



从色彩搭配上来看,轻奢风格设计多用一些基础色彩,这些都是比较倾向于高雅调性的色彩。



它们简约、大气且富有轻奢气质,运用在家居设计中,可以在呈现温馨大气的格调之余,又牵引出浓浓的时尚高雅范儿。



轻奢不仅是一种装饰装修风格的表现,它也是一种极致优雅的生活态度。





佐佑设计
佐佑设计

积分:-

注册时间:-

地板
2021-09-23 14:12:07



我们希望创造一个温暖的环境,可以放松身体,感觉舒适,没有任何束缚和压力。






搭配的摆台小饰品也是如此优雅的展示着

佐佑设计
佐佑设计

积分:-

注册时间:-

4楼
2021-09-23 14:18:14

- 餐厅 -




将厨房和餐厅的空间打通,解决入户以及餐厅光线问题的同时,打造出深受年轻人喜爱的生活方式。



厨房与餐厅之间隐藏折叠门,可以展示厨艺的同时,有效的避免油烟扩散问题。




岩板打造的岛台与餐桌,搭配大量的金属元素,再加上一些闪亮的装饰元素作为点缀,轻松优雅的知性的风格又能很好体现,体现出轻奢风格之美。




佐佑设计
佐佑设计

积分:-

注册时间:-

5楼
2021-09-23 14:25:14

- 厨房 -





佐佑设计
佐佑设计

积分:-

注册时间:-

6楼
2021-09-23 14:30:31

- 走廊 -



大多数的轻奢风格在家装中表现的干净利落,高级感和可塑性强。



在设计上并不讲究过多的缀饰,而是更加的看重个人特性和整体气质。



而这些气质往往通过精致的软装和细节呈现出来,让人身处于这种高级感的视觉和环境下。

佐佑设计
佐佑设计

积分:-

注册时间:-

7楼
2021-09-23 14:33:54

- 主人房 -



奢华与金钱或其他一切无关,就像卧室里没有华丽的装饰一样,只有合适的灯光舒适度,一种无负担、高质量的生活态度。





佐佑设计
佐佑设计

积分:-

注册时间:-

8楼
2021-09-23 14:36:03

- 衣帽间 -



将原来的主卫缩小,释放出设置衣帽间的区域,两排大衣柜,这下业主美美的衣服不怕无处安放。
佐佑设计
佐佑设计

积分:-

注册时间:-

9楼
2021-09-23 14:37:53

- 主卫 -



佐佑设计
佐佑设计

积分:-

注册时间:-

10楼
2021-09-23 14:40:57

- 儿童房 -







佐佑设计
佐佑设计

积分:-

注册时间:-

11楼
2021-09-23 14:43:24

- 父母房 -





佐佑设计
佐佑设计

积分:-

注册时间:-

12楼
2021-09-23 14:44:41

- 公卫-

佐佑设计
佐佑设计

积分:-

注册时间:-

13楼
2021-09-23 14:48:31

- 灵动空间 -



客厅规划了灵活工作空间,解决了业主没有书房的烦恼。



厨房隐藏折叠门




小孩房组合床#抽屉楼梯




小孩房组合床#抽屉楼梯
画者
画者

积分:-

注册时间:-

14楼
2021-10-14 00:30:14

生活家地板256
生活家地板256

积分:-

注册时间:-

15楼
2021-10-24 10:20:47

东升台面惠
东升台面惠

积分:-

注册时间:-

16楼
2021-10-24 19:20:55 来自iPhone客户端
厨房的设计很喜欢,提高了空间利用率
佐佑设计
佐佑设计

积分:-

注册时间:-

17楼
2021-10-24 22:05:50 来自iPhone客户端
感谢关注
引用15楼生活家地板256的发言:

佐佑设计
佐佑设计

积分:-

注册时间:-

18楼
2021-10-24 22:10:41 来自iPhone客户端
得到认可很开心,谢谢你
引用16楼东升台面惠的发言:
厨房的设计很喜欢,提高了空间利用率
2013范
2013范

积分:-

注册时间:-

19楼
2021-10-24 22:26:20 来自iPhone客户端
空间利用率很好
匠心坊布艺
匠心坊布艺

积分:-

注册时间:-

20楼
2022-04-03 19:02:21 来自Android手机客户端
  • 插入图片

    支持一次选择9张图片上传(使用Ctrl、Shift选中);

    支持jpg、png、gif,单张图片不超过10M,png不超过1M,gif不超过300K。

    • 继续添加

  • 提到好友

3(16px)

楼主最近发表

相关帖子

    大家都在看

    下载家在深圳APP

    关注家在公众号