家在深圳,真实业主生活圈_房网论坛

0

|

21

【佐佑设计】114m北欧轻奢混搭丨灰、蓝的碰撞,也很温馨时尚

佐佑设计
佐佑设计

积分:-

注册时间:-

主楼
2021-07-07 17:40:36
标签: 点击标签查看相关内容

【佐佑设计】114m北欧轻奢混搭丨灰、蓝的碰撞,也很温馨时尚


项目地址:深圳丨馨庭苑
项目面积:114m²丨三居室
设计风格:北欧轻奢
分享
0
佐佑设计
佐佑设计

积分:-

注册时间:-

沙发
2021-07-07 17:44:05

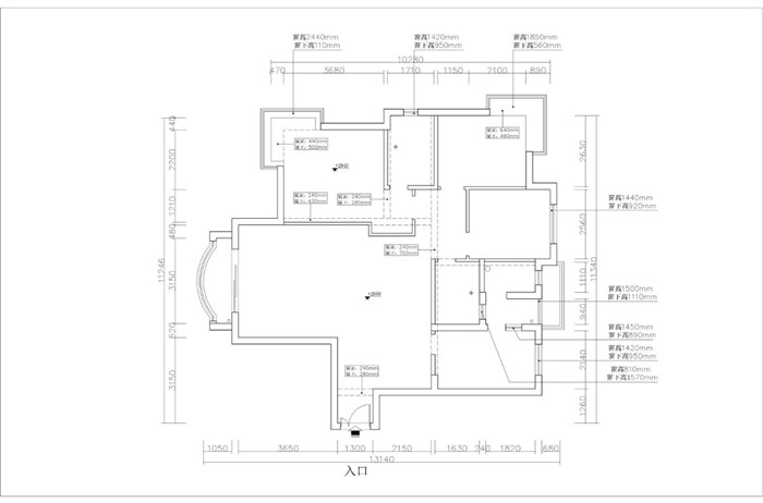
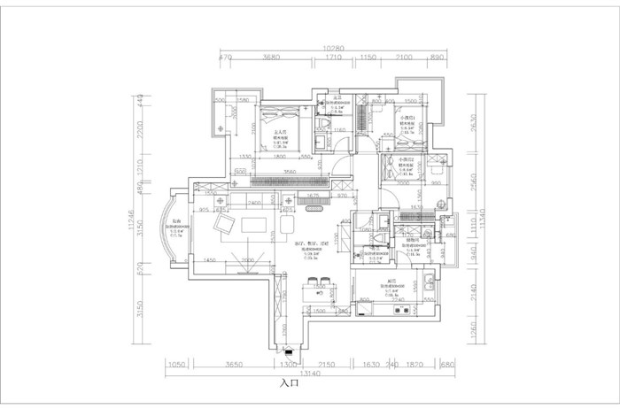
- 户型图 -

原始户型图


平面设计图

佐佑设计
佐佑设计

积分:-

注册时间:-

板凳
2021-07-07 17:45:42

- 改造前 -


佐佑设计
佐佑设计

积分:-

注册时间:-

地板
2021-07-07 17:51:49

- 玄关 -

【精简实用】玄关简洁宽敞,整面鞋柜满足女主人爱购的欲望及全家人的储存空间,人性化的换鞋凳及穿衣镜,记录着每天出门前的满满精神及回到家的愉悦心情。





佐佑设计
佐佑设计

积分:-

注册时间:-

4楼
2021-07-07 17:59:08

- 餐厅 -

【精简实用】餐厅没有太多造作的装饰与约束。定制餐边酒柜迎合了主人对生活方式的需求,还不能缺乏自在感与情调感。









佐佑设计
佐佑设计

积分:-

注册时间:-

5楼
2021-07-07 18:02:12

- 客厅 -

【以宽大,舒适为主】客厅灰色电视墙添加蓝色墙板与蓝色窗帘白纱碰撞提升优雅,优雅空间中一片浅黄,如洒在室内的暖阳,盈满一屋的温馨安祥,别样的清新在心中徜徉。









佐佑设计
佐佑设计

积分:-

注册时间:-

6楼
2021-07-07 18:03:30

- 厨房 -

【以简洁,舒适为主】厨房是女主人的地盘,墙面白色与灰色砖相互呼应,让空间更加协调,视觉上大气整洁,打理起来更加轻松。



佐佑设计
佐佑设计

积分:-

注册时间:-

7楼
2021-07-07 18:04:43

- 走廊 -

【精简实用】过道是通往三房间的通道,向主人房借出部分空间加入储物柜,黑色金属的吊灯,增加美感的同时又满足收纳空间。



佐佑设计
佐佑设计

积分:-

注册时间:-

8楼
2021-07-07 18:06:02

- 公卫 -

【以简洁,易打理为主】公卫人性化干湿分区,使用方便。白色墙面简洁,易打理,地面拼接黑色小六角砖,不失单于而又美观大方。



佐佑设计
佐佑设计

积分:-

注册时间:-

9楼
2021-07-07 18:08:47

- 主人房 -

【以舒适为主】主人房干净而舒适,柔和的光线下,无比宁静。适当借用客厅的空间,一排暗藏式衣柜与梳妆台一体,大大的收纳空间。









佐佑设计
佐佑设计

积分:-

注册时间:-

10楼
2021-07-07 18:11:04

- 主卫 -

【以简洁干净为主】主卫用灰色砖和黑色浴室柜简洁大方,观感不失单一。





佐佑设计
佐佑设计

积分:-

注册时间:-

11楼
2021-07-07 18:12:43

- 儿童房 -

【以舒适为主】女儿房粉色的公主城堡,是每个小女孩的梦想。粉色窗帘、粉色公主床单,可以根据小女孩的喜好更换。





佐佑设计
佐佑设计

积分:-

注册时间:-

12楼
2021-07-07 18:18:56

- 细节特写 -















小陈LAMINAM岩板
小陈LAMINAM岩板

积分:-

注册时间:-

13楼
2021-07-10 14:21:56 来自Android手机客户端
洗手间颜色搭配很好,就是瓷砖的缝太多了
伊歌铝木生态门
伊歌铝木生态门

积分:-

注册时间:-

14楼
2021-08-11 11:48:15 来自Android手机客户端
我爱我家GT
我爱我家GT

积分:-

注册时间:-

15楼
2021-09-03 23:12:03 来自Android手机客户端
👍
鑫鑫福临门窗
鑫鑫福临门窗

积分:-

注册时间:-

16楼
2021-09-10 16:38:47

2013范
2013范

积分:-

注册时间:-

17楼
2021-10-24 22:30:22 来自iPhone客户端
东升台面梁万岁
东升台面梁万岁

积分:-

注册时间:-

18楼
2021-10-28 16:03:55 来自Android手机客户端
生活家地板256
生活家地板256

积分:-

注册时间:-

19楼
2021-10-29 16:30:31

东升台面惠
东升台面惠

积分:-

注册时间:-

20楼
2021-11-03 18:05:47 来自iPhone客户端
整体空间色彩运用、搭配非常鲜明,但又不突兀,特别是卧室根据不同的人群搭配不一样的窗帘色彩,这个设计很用心、贴心!每一处都彰显设计师无微不至用心设计,小到连一个盆栽的摆设位置!可以看得出来这应该是一户家庭氛围非常好,很活泼开朗、有爱的一家!
  • 插入图片

    支持一次选择9张图片上传(使用Ctrl、Shift选中);

    支持jpg、png、gif,单张图片不超过10M,png不超过1M,gif不超过300K。

    • 继续添加

  • 提到好友

3(16px)

楼主最近发表

相关帖子

    大家都在看

    下载家在深圳APP

    关注家在公众号