家在深圳,真实业主生活圈_房网论坛

0

|

12

装修记录

阿杰a
阿杰a

积分:-

注册时间:-

主楼
2024-11-05 11:01:30 来自Android手机客户端
标签: 点击标签查看相关内容

装修记录

开始装修了,记录下。
砌墙完成,要砌的墙不多。





分享
0
信誓旦旦旦
信誓旦旦旦

积分:-

注册时间:-

沙发
2024-11-05 11:06:25
用户被禁言
阿杰a
阿杰a

积分:-

注册时间:-

板凳
2024-11-05 13:44:13 来自Android手机客户端
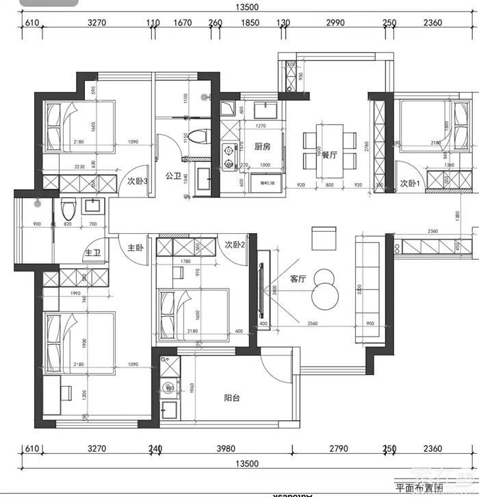
平面设计图。

阿杰a
阿杰a

积分:-

注册时间:-

地板
2024-11-05 15:33:54 来自Android手机客户端
批荡完成。





阿杰a
阿杰a

积分:-

注册时间:-

4楼
2024-11-05 17:31:49
小区业主推介的装修公司,做了9年了,周边小区做过很多工程。
装修公司小,在周边口碑还不错。

阿杰a
阿杰a

积分:-

注册时间:-

5楼
2024-11-06 10:32:26 来自Android手机客户端
早上做了水电定位,开始开槽了。
今天没有拍照。
阿杰a
阿杰a

积分:-

注册时间:-

6楼
2024-11-06 11:51:48
签合同时装修公司没有给详细的装修流程图。
今天监工大概说了下流程。
拆墙砌墙~水电~防水~木工吊顶~贴砖~厨卫门安装~第一次腻子~橱柜衣柜安装、室内门安装~二次腻子+墙漆~厨卫吊顶~厨具、洁具安装。
雕饰家园
雕饰家园

积分:-

注册时间:-

7楼
2024-11-06 21:43:28

阿杰a
阿杰a

积分:-

注册时间:-

8楼
2024-11-07 10:12:38
另外一个号找到能登录了,装修记录转到另外一个号记录
老负婆
老负婆

积分:-

注册时间:-

9楼
2024-11-11 10:59:01
户型不错,阳台扩展到连接客厅就更完美了。帖子转到哪里了,放个链接吧

零点装饰
零点装饰

积分:-

注册时间:-

10楼
2024-12-01 19:48:15 来自iPhone客户端
阿杰a
阿杰a

积分:-

注册时间:-

11楼
2024-12-05 11:44:25
http://bbs.szhome.com/30-30030-detail-178664643.html
引用9楼老负婆的发言:
户型不错,阳台扩展到连接客厅就更完美了。帖子转到哪里了,放个链接吧

日中天装饰
日中天装饰

积分:-

注册时间:-

12楼
2024-12-06 15:25:23
老总,太久不见你的踪迹了
引用7楼雕饰家园的发言:

  • 插入图片

    支持一次选择9张图片上传(使用Ctrl、Shift选中);

    支持jpg、png、gif,单张图片不超过10M,png不超过1M,gif不超过300K。

    • 继续添加

  • 提到好友

3(16px)

楼主最近发表

相关帖子

    大家都在看

    下载家在深圳APP

    关注家在公众号