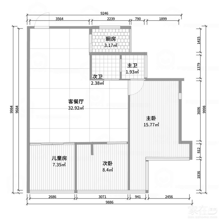
儿童房树屋?满墙书柜+2m大长桌?投影?岛台?通通都想要!70平二房改三房 小家装修点滴
想要满墙书柜+2m大书桌,满足写书法、画国画的需要,也给孩子充满书香的氛围;
想要有树屋儿童房,给孩子们难忘的游乐场式房间,让童年的记忆在一生中都熠熠闪光;
想要有大大的投影,周末的夜晚,全家人洗去疲乏,围坐在一起度过难忘的电影之夜;
听周围的朋友讲述了装修如何地耗时费力如何地令人身心俱疲,但思虑万千,装修小白还是决定开启自己人生的第一次装修。将逯薇的《小家》4部曲反复研读了三四遍,在酷家乐上从0开始学着绘图布局,绞尽脑汁根据自己的生活习惯去改造房间……准备工作永远做不完,而时间的推进终于让我来到了选择装修公司的第一步。





且项目还没有金匠的项目全。


粤公网安备 44030402000760号
