家在深圳,真实业主生活圈_房网论坛

1264

|

1

卫生间如何一卫改两卫?

285991498

285991498题主2021-10-13 08:31:55 来自iPhone客户端

卫生间如何一卫改两卫?

标签:...

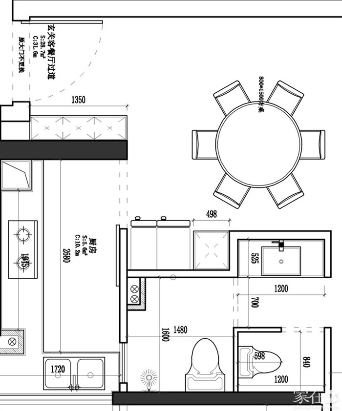
大神看看这个空间能做1个独立马桶区域➕一个干湿分离的卫生间➕淋浴区➕一个独立洗手台嘛。左边是厨房,右边是过道。

对我
有用
Cupide

Cupide2021-10-13 14:15:49

m
收起评论
  • 插入图片

    支持一次选择9张图片上传(使用Ctrl、Shift选中);

    支持jpg、png、gif,单张图片不超过10M,png不超过1M,gif不超过300K。

    • 继续添加

  • 提到好友

3(16px)

楼主最近发表

大家都在看

下载家在深圳APP

关注家在公众号

打赏

拥有金币 0 2 5 7 10