标签:
点击标签查看相关内容
【个人】西丽房子出租
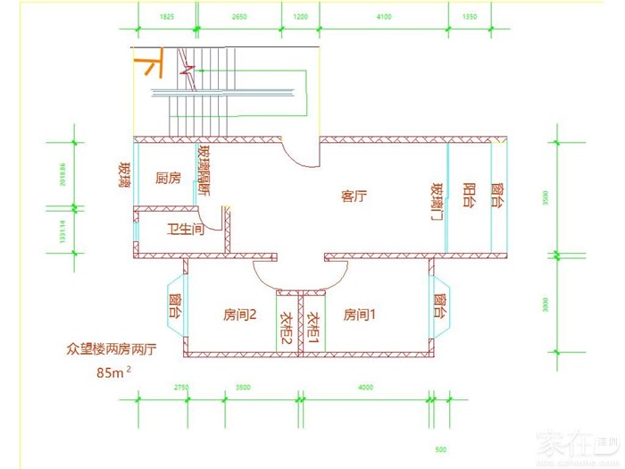
租赁类型:出租出租方式:整套出租发布人:个人区域:南山区 西丽片区小区名称:西丽众望楼详细地址:西丽街道户型:二房面积:85m²租金:5000元/月 面议联系人:王女士联系电话:13246688494楼层:第8层 共9层装修情况:简单装修最小租期:一年配套:煤气/天然气 花园/小院 电话线路 有线电视线路 宽带线路 室内设施:热水器 床 厨具
西丽众望楼个人房屋出租
个人房源,一梯两户,多层住宅(无电梯),安静小区,有物业管理;房屋方正,南北通透,楼高9层,本房在8层,85平方;位于西丽中心地段,小区门口是西丽公交的交汇点,沙河西路南行西丽法庭②公交站(海龙珠加油站),上海银行;地铁5号、7号线西丽地铁站B出口前往300米,出行方便;小区后门是石鼓山公园的上山入口;小区门口是西丽街道,与天虹商场一路相隔,购物方便;对面有中国银行、发展银行;周围有南蓉大酒店;有部分家具;管道燃气,水电抄表到户,中介勿扰,用作集体宿舍免谈。
西丽众望楼个人房屋出租
个人房源,一梯两户,多层住宅(无电梯),安静小区,有物业管理;房屋方正,南北通透,楼高9层,本房在8层,85平方;位于西丽中心地段,小区门口是西丽公交的交汇点,沙河西路南行西丽法庭②公交站(海龙珠加油站),上海银行;地铁5号、7号线西丽地铁站B出口前往300米,出行方便;小区后门是石鼓山公园的上山入口;小区门口是西丽街道,与天虹商场一路相隔,购物方便;对面有中国银行、发展银行;周围有南蓉大酒店;有部分家具;管道燃气,水电抄表到户,中介勿扰,用作集体宿舍免谈。




粤公网安备 44030402000760号
