标签: 点击标签查看相关内容

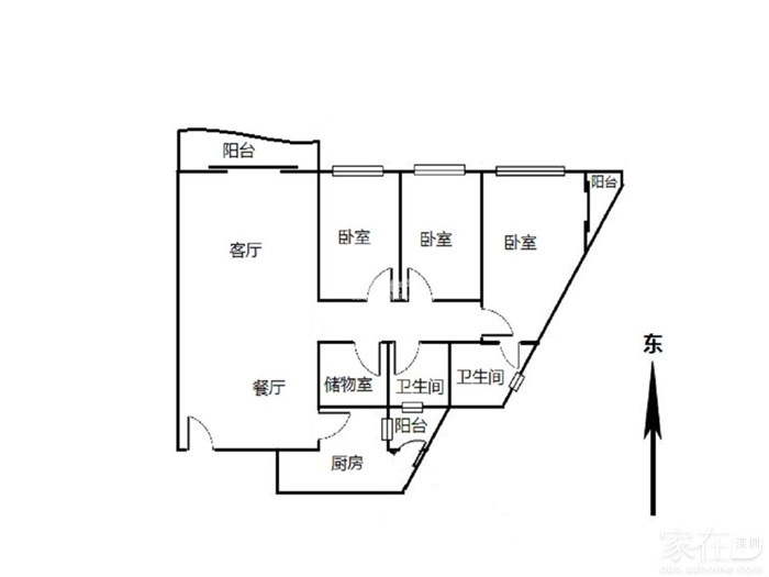
【中介】后海!海岸城!漾日湾畔!141平!保养不错!四房!招租!15500月!已空出!

租赁类型:出租出租方式:整套出租发布人:经纪人区域:南山区 后海片区小区名称:漾日湾畔户型:四房面积:141m²租金:15500元/月 面议联系人:小徐联系电话:18927442848

都是空出来的房源,看房都方便的,都是空出来的房源,看房都方便的,保养干净,业主急租,欢迎加我微信(18927442848)或电话我!





分享
0