家在深圳,真实业主生活圈_房网论坛

0

|

4

【中介】南山书城!海印长城二期!75平!两房!装修很好!招租!8500月!已空出方便看房!

小徐x
小徐x

积分:-

注册时间:-

主楼
2022-05-22 18:05:12
标签: 点击标签查看相关内容

【中介】南山书城!海印长城二期!75平!两房!装修很好!招租!8500月!已空出方便看房!

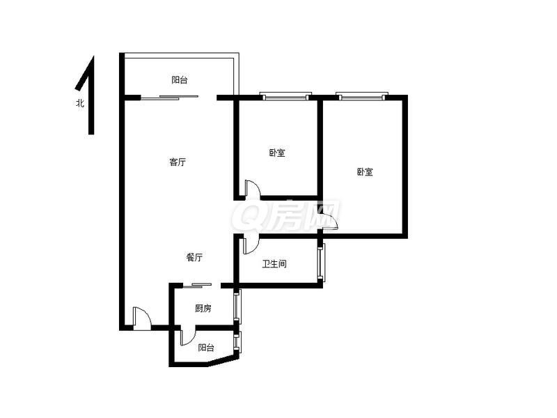
租赁类型:出租出租方式:整套出租发布人:经纪人区域:南山区 后海片区小区名称:海印长城户型:二房面积:75m²租金:8500元/月 面议联系人:小徐联系电话:18927442848

装修保养都不错,家私家电都有,已经空出来的房子,方便看房,欢迎您来电或加我微信(18927442848小徐)





分享
0
小徐x
小徐x

积分:-

注册时间:-

沙发
2022-05-24 10:29:58
最近各大小区又出来不少不错的房源,欢迎您的约看:18927442848小徐!
小徐x
小徐x

积分:-

注册时间:-

板凳
2022-05-27 10:55:07
欢迎您的约看;18927442848小徐!
小徐x
小徐x

积分:-

注册时间:-

地板
2022-05-30 10:34:52
最近各大小区出来了些不错的房源,可供选择,欢迎您的咨询:18927442848小徐!
小徐x
小徐x

积分:-

注册时间:-

4楼
2022-06-03 10:27:57
欢迎您的约看:18927442848小徐!
  • 插入图片

    支持一次选择9张图片上传(使用Ctrl、Shift选中);

    支持jpg、png、gif,单张图片不超过10M,png不超过1M,gif不超过300K。

    • 继续添加

  • 提到好友

3(16px)

楼主最近发表

相关帖子

    大家都在看

    下载家在深圳APP

    关注家在公众号