标签:
点击标签查看相关内容
龙岗地铁口零距离,做医疗器械,研发办公
龙岗地铁口23万㎡全新生物医药特色园区
【项目简介】占地约5.78万㎡,总建面约23万㎡,新型厂房、研发办公、地铁商业、公寓等多种产品规划
【招商对象】医疗器械、细胞基因、医美制剂、小分子制剂、合成生物等
【硬性配套】集中废水处理、双回路供电、24小时工业蒸汽、危废仓、专用废水废气管道
【项目交通】地铁上盖(16号线地铁口)、1快线5高速,3分钟上南坪;
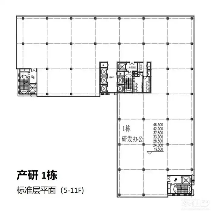
【租赁面积】500㎡起租,单层:1622-3490㎡;独栋:4502-41830㎡(顶部三层带退台花园)
【层高】4.5-6米
【核载】500-1200KG
【电梯】每栋配置7-8部电梯,3-4部1.6T客梯、2-3部2-3T货梯(双开门设置)
【使用率】单层套内82%,分租套内73%
【停车位】1400个
黄生13544229322
![]()
![]()
![]()
![]()
![]()
![]()
![]()
【项目简介】占地约5.78万㎡,总建面约23万㎡,新型厂房、研发办公、地铁商业、公寓等多种产品规划
【招商对象】医疗器械、细胞基因、医美制剂、小分子制剂、合成生物等
【硬性配套】集中废水处理、双回路供电、24小时工业蒸汽、危废仓、专用废水废气管道
【项目交通】地铁上盖(16号线地铁口)、1快线5高速,3分钟上南坪;
【租赁面积】500㎡起租,单层:1622-3490㎡;独栋:4502-41830㎡(顶部三层带退台花园)
【层高】4.5-6米
【核载】500-1200KG
【电梯】每栋配置7-8部电梯,3-4部1.6T客梯、2-3部2-3T货梯(双开门设置)
【使用率】单层套内82%,分租套内73%
【停车位】1400个
黄生13544229322







粤公网安备 44030402000760号
