标签: 点击标签查看相关内容

【中介】南山中心区!华彩天成!80平!满五!售!7xx万!方便看房!

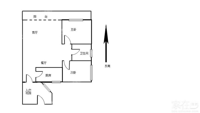
交易类型:出售发布人:经纪人区域:南山区 南山中心区小区名称:华彩花园户型:二房面积:80m²总价:--楼层:第8层 共18层联系人:小徐联系电话:18927442848

都是最近降价的房源,业主诚心卖的,看上估计还能再谈,业主心态弱,欢迎加我微信(18927442848)或电话我






分享
0