标签: 点击标签查看相关内容

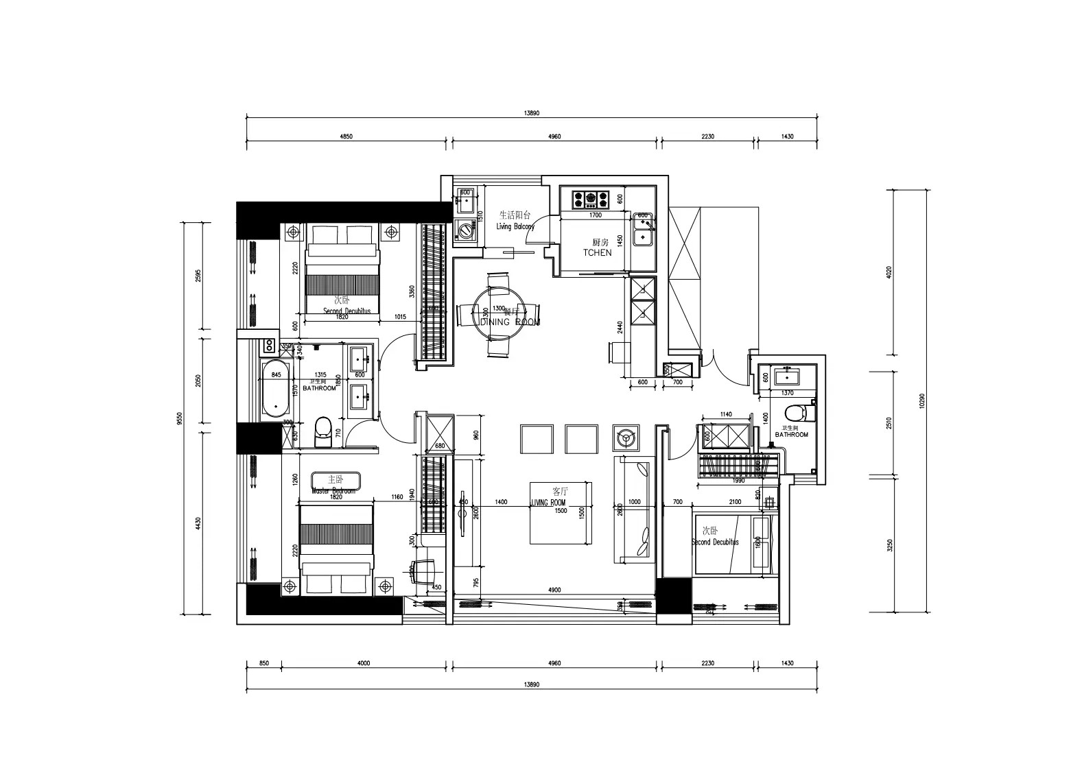
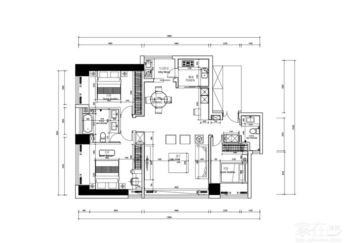
【个人】华润悦府二期166平豪华装修,可改4房。

交易类型:出售发布人:个人区域:南山区 后海片区小区名称:悦府二期户型:四房面积:166m²总价:--楼层:第13层 共45层朝向:西联系人:余校长联系电话:18898798278



本月必成交:深圳湾顶豪|专属委托,深圳湾悦府二期|1栋A户型,电梯入户,168.7 平2房可做3-4房,全新从未住过,仅此一套,业主诚意出售,24小时配合看房!

预约电话:18898798278(微信同号)









分享
0