家在深圳,真实业主生活圈_房网论坛

0

|

1

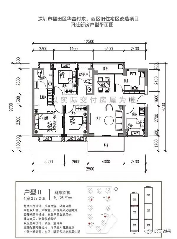
【中介】福田【华富村】回迁房105-115平3/4房要名额单价10.5

囿于昼夜
囿于昼夜

积分:-

注册时间:-

主楼
2023-06-26 16:03:19 来自Android手机客户端
标签: 点击标签查看相关内容

【中介】福田【华富村】回迁房105-115平3/4房要名额单价10.5

交易类型:出售发布人:经纪人区域:福田区 福田中心区小区名称:华富村户型:四房面积:115m²总价:--楼层:第30层 共40层朝向:联系人:联系电话:13760326223



华富村回迁房,10.5万户型可选










分享
0
囿于昼夜
囿于昼夜

积分:-

注册时间:-

沙发
2023-06-26 16:03:28 来自Android手机客户端
微信cye6223

一手现楼
【远洋天著】100-106-118-121平方毛坯
【香山道公馆】110-143平方
备案价95折
【京基水贝城市广场】205平备案价有折扣
【宝能公馆】108-128-220平方,一次性,深高级学位
【合正置地大厦】90-250平
一次性,深高级学位
【天健悦湾府】113-164平方
2/3单元高楼层
【深业云海湾】106-108-116-143-183平方
【云玺锦庭】119-156平带精装,户型可选
【新锦安壹号公馆】300平方
5/10/13/25楼
【宝能太古城】59平带装
257平顶楼,毛坯
【安宏基天曜】112-185平方
  • 插入图片

    支持一次选择9张图片上传(使用Ctrl、Shift选中);

    支持jpg、png、gif,单张图片不超过10M,png不超过1M,gif不超过300K。

    • 继续添加

  • 提到好友

3(16px)

楼主最近发表

相关帖子

    大家都在看

    下载家在深圳APP

    关注家在公众号