家在深圳,真实业主生活圈_房网论坛

0

|

1

【中介】独栋别墅【欢乐海岸蓝楹湾】760平实用2200

囿于昼夜
囿于昼夜

积分:-

注册时间:-

主楼
2023-06-10 20:57:35 来自Android手机客户端
标签: 点击标签查看相关内容

【中介】独栋别墅【欢乐海岸蓝楹湾】760平实用2200

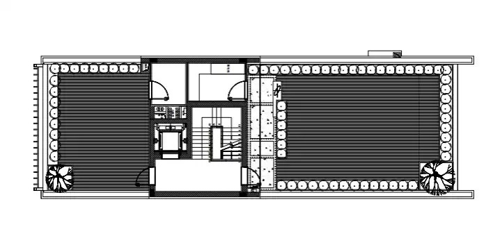
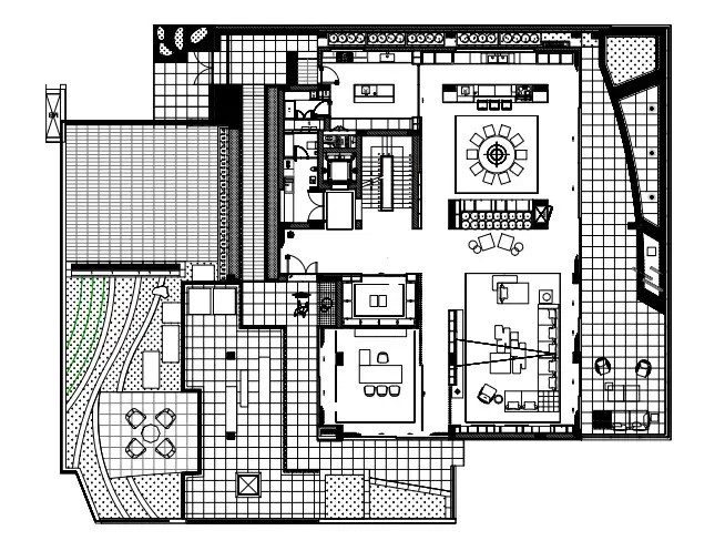
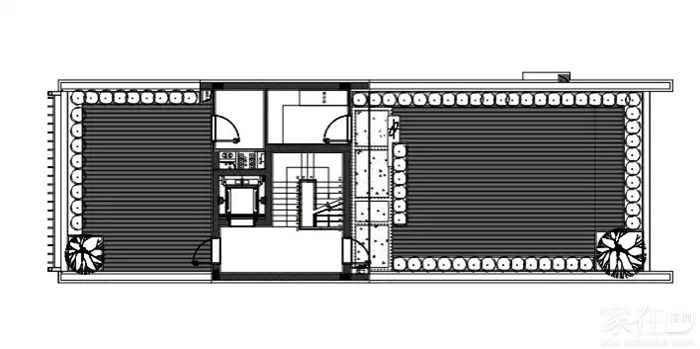
交易类型:出售发布人:经纪人区域:南山区 华侨城片区小区名称:欢乐海岸蓝楹湾户型:别墅面积:760m²总价:--楼层:第1层 共5层朝向:南北通透联系人:曹R联系电话:13760326223



【蓝楹湾·独栋别墅·端头臻稀席位】
【层数】:上下五层(带1层地下室)
【居室】:10房3厅2厨12卫
【面积】:760平米 
【实用】:2200平米左右
【花园】:前后花园1800平
【朝向】:南北通透,四面采光
【车位】:多个私家车位
【装修】:超9000万全进口高端豪装









分享
0
囿于昼夜
囿于昼夜

积分:-

注册时间:-

沙发
2023-06-10 21:12:58 来自Android手机客户端










  • 插入图片

    支持一次选择9张图片上传(使用Ctrl、Shift选中);

    支持jpg、png、gif,单张图片不超过10M,png不超过1M,gif不超过300K。

    • 继续添加

  • 提到好友

3(16px)

楼主最近发表

相关帖子

    大家都在看

    下载家在深圳APP

    关注家在公众号