标签:
点击标签查看相关内容
【中介】名居山河里开盘享受统一享受内部折扣86折,需要的联系
交易类型:出售发布人:经纪人区域:龙岗区 龙岗中心区小区名称:名居山河里户型:三房面积:95m²总价:--楼层:第1层 共1层朝向:东南联系人:邹生联系电话:13622310533
名居山河里开盘享受统一享受内部折扣86折,需要的联系
?项目总占地:约6.4万㎡
?项目总建面:约48万㎡
?物业性质:住宅
?产权:70年
?交楼标准:毛坯(01地块)
?开发商:深圳市银科投资有限公司
?物业公司:中海物业
?总户数:2200(一期760户,二期1440户)
?容积率:5.83(01地块)
?停车位:1936(一期645,二期1291)
?物业费:4.5元/㎡/月(住宅)
?梯户比:三梯五户
?绿化率:40%
?
主力产品:约75-141㎡2-4房住宅
————— 十大核心价值点 ————
『名居地产』 品质人居缔造者
二十一年砥砺奋进,名居地产深耕鹏城,致力成为深圳本土品质住宅的“示范者”,用心精筑了绿海名都、绿海名居、绿海湾花园等高端住宅项目;2017年顺势东进龙岗中心城,名居广场综合体项目成为区域新封面。名居地产秉承“名居缔造·缔造名居”的初心使命,“名居山河里”项目在大运片区破图动工,一座总建面约48万㎡的山河大城即将精彩绽放。
(项目效果图)
![]()
『东进桥头堡』 执掌大运中心门户
名居·山河里地处深圳东部中心重点区域横岗,占位深圳东进战略桥头堡,是连接龙岗东西部的中间点,被誉为龙岗的“腰杆子”,执掌大运新城中心门户。横岗将打造“科技智造城,创意生活谷”,优势产业与大运新城协同发展,周边19个旧改项目,体量超300万㎡,未来生活全面升级。
(示意图)
![]()
『千亿科创』 前瞻未来广阔价值
科创产业巨擘阿波罗未来产业园,实力媲美华为科技城,年产值将达约2000亿元,吸引约3000家创新型企业入驻,目前光启、邦彦绿谷工厂、无人直升机研制等产业项目已抢滩登陆。约20万高精尖人才汇聚,前景广阔可期。
(示意图)
『多维路网』 立体交通触达世界
立体交通构建高效湾区生活圈,赋予先于世界的出行权。
l “三地铁”自由出行
3号线:约200m即永湖地铁口,两站到大运,8站到罗湖
14号线:两站达大运,7站抵达布吉,10站即达岗厦北
16号线:一站达大运中心,速联园山街道,抵达阿波罗未来产业园
l “三横五纵”多维路网
三横:水官高速、南坪快速、沈海高速
五纵:龙岗大道、丹平快速、盐排高速、惠盐路(部分已建成)、东部过境高速(在建中)
(示意图)
『置身繁华』 丰盛就在步行圈
生活圈内尽享丰盛配套,新世界188项目商业、约4.4万㎡星河盛境商业、约3.6万㎡卓弘星辰商业、约7.9万㎡星河COCO Park商业等繁华商圈簇拥。本项目自带约3万㎡配套商业,醇熟生活即刻兑现。
(项目效果图)
『自然天赋』 水岸臻境触目可及
名居·山河里紧邻梧桐山河碧道,建设长度约2.4公里,建面约15.66万㎡,环山亲水,串联街心公园与滨河绿廊,打造慢行系统,匠心创著专属绿海水岸IP,成就城市奢适自然主场。
(项目效果图)
『书香门第』 为未来插上翅膀
>>紧邻54班九年一贯制学校——香港中文大学(深圳)附属时进学校(规划中),孩子教育邻距离,成长就在眼前。
>>楼下优质幼儿园,目送孩子上学——自带约4800㎡18班幼儿园,一出家门即入校门,孩子上学更安心。
(示意图)
『多元乐享』 定制全龄全时园林
>>活力康养——活力健身主场,畅享阳光泳池、篮球场、多功能场地、慢行系统
>>睦邻社区——阳光草坪、架空层会所,邻里洽谈、户外晨练、老年颐养,分享邻里欢乐
>>童真乐园——儿童乐园、四点半学堂,以梦幻开启孩子们探索世界的第一步
(项目效果图)
![]()
『水岸生活』 建面约75-141㎡ 精质舒居
总建面约48万㎡山河大城崛起,匠筑城市封面级立面,毫米级精工雕琢空间。室内设计以人为本,s型冰箱位、LDK+G一体化设计更显奢阔,户型方正,户户朝南,大面积采光,带IMAX宽景阳台,俯瞰山河,诠释生活的至臻格调。
(项目效果图)
『尊崇礼遇』 中海物业倾心服务
中海物业,享誉全国的知名物业品牌。铂金管家360°高端定制服务,奉行人性化管理、精细化服务、个性化定制三大服务理念,星级酒店管理服务模式,并采用大数据管理平台,提供全天候、全方位服务
(示意图)
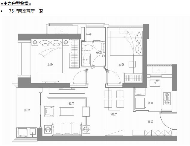
»主力户型鉴赏«
75㎡两室两厅一卫
![]()
96㎡三室两厅两卫
![]()
99-102㎡三室两厅两卫
120㎡四室两厅两卫
141㎡四室两厅两卫
名居山河里开盘享受统一享受内部折扣86折,需要的联系
?项目总占地:约6.4万㎡
?项目总建面:约48万㎡
?物业性质:住宅
?产权:70年
?开发商:深圳市银科投资有限公司
?物业公司:中海物业
?总户数:2200(一期760户,二期1440户)
?容积率:5.83(01地块)
?停车位:1936(一期645,二期1291)
?物业费:4.5元/㎡/月(住宅)
?梯户比:三梯五户
?绿化率:40%
主力产品:约75-141㎡2-4房住宅
————— 十大核心价值点 ————
『名居地产』 品质人居缔造者
二十一年砥砺奋进,名居地产深耕鹏城,致力成为深圳本土品质住宅的“示范者”,用心精筑了绿海名都、绿海名居、绿海湾花园等高端住宅项目;2017年顺势东进龙岗中心城,名居广场综合体项目成为区域新封面。名居地产秉承“名居缔造·缔造名居”的初心使命,“名居山河里”项目在大运片区破图动工,一座总建面约48万㎡的山河大城即将精彩绽放。
(项目效果图)
『东进桥头堡』 执掌大运中心门户
名居·山河里地处深圳东部中心重点区域横岗,占位深圳东进战略桥头堡,是连接龙岗东西部的中间点,被誉为龙岗的“腰杆子”,执掌大运新城中心门户。横岗将打造“科技智造城,创意生活谷”,优势产业与大运新城协同发展,周边19个旧改项目,体量超300万㎡,未来生活全面升级。
(示意图)
『千亿科创』 前瞻未来广阔价值
科创产业巨擘阿波罗未来产业园,实力媲美华为科技城,年产值将达约2000亿元,吸引约3000家创新型企业入驻,目前光启、邦彦绿谷工厂、无人直升机研制等产业项目已抢滩登陆。约20万高精尖人才汇聚,前景广阔可期。
(示意图)
『多维路网』 立体交通触达世界
立体交通构建高效湾区生活圈,赋予先于世界的出行权。
l “三地铁”自由出行
3号线:约200m即永湖地铁口,两站到大运,8站到罗湖
14号线:两站达大运,7站抵达布吉,10站即达岗厦北
16号线:一站达大运中心,速联园山街道,抵达阿波罗未来产业园
l “三横五纵”多维路网
三横:水官高速、南坪快速、沈海高速
五纵:龙岗大道、丹平快速、盐排高速、惠盐路(部分已建成)、东部过境高速(在建中)
(示意图)
生活圈内尽享丰盛配套,新世界188项目商业、约4.4万㎡星河盛境商业、约3.6万㎡卓弘星辰商业、约7.9万㎡星河COCO Park商业等繁华商圈簇拥。本项目自带约3万㎡配套商业,醇熟生活即刻兑现。
(项目效果图)
『自然天赋』 水岸臻境触目可及
名居·山河里紧邻梧桐山河碧道,建设长度约2.4公里,建面约15.66万㎡,环山亲水,串联街心公园与滨河绿廊,打造慢行系统,匠心创著专属绿海水岸IP,成就城市奢适自然主场。
(项目效果图)
『书香门第』 为未来插上翅膀
>>紧邻54班九年一贯制学校——香港中文大学(深圳)附属时进学校(规划中),孩子教育邻距离,成长就在眼前。
>>楼下优质幼儿园,目送孩子上学——自带约4800㎡18班幼儿园,一出家门即入校门,孩子上学更安心。
(示意图)
『多元乐享』 定制全龄全时园林
>>活力康养——活力健身主场,畅享阳光泳池、篮球场、多功能场地、慢行系统
>>睦邻社区——阳光草坪、架空层会所,邻里洽谈、户外晨练、老年颐养,分享邻里欢乐
>>童真乐园——儿童乐园、四点半学堂,以梦幻开启孩子们探索世界的第一步
(项目效果图)
『水岸生活』 建面约75-141㎡ 精质舒居
总建面约48万㎡山河大城崛起,匠筑城市封面级立面,毫米级精工雕琢空间。室内设计以人为本,s型冰箱位、LDK+G一体化设计更显奢阔,户型方正,户户朝南,大面积采光,带IMAX宽景阳台,俯瞰山河,诠释生活的至臻格调。
(项目效果图)
『尊崇礼遇』 中海物业倾心服务
中海物业,享誉全国的知名物业品牌。铂金管家360°高端定制服务,奉行人性化管理、精细化服务、个性化定制三大服务理念,星级酒店管理服务模式,并采用大数据管理平台,提供全天候、全方位服务
(示意图)
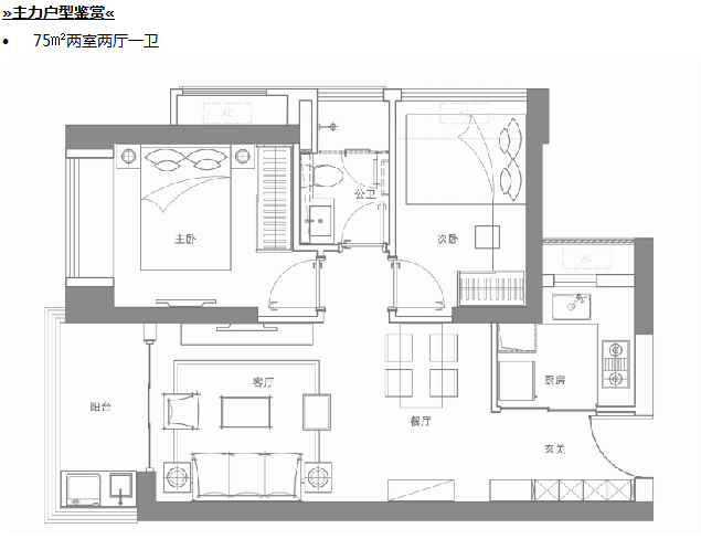
»主力户型鉴赏«
75㎡两室两厅一卫
96㎡三室两厅两卫
99-102㎡三室两厅两卫
120㎡四室两厅两卫
141㎡四室两厅两卫






粤公网安备 44030402000760号
