标签: 点击标签查看相关内容

【中介】名居山河里 新房 统一享受开发商折扣 再享反佣5w-10w, 想省钱联系我

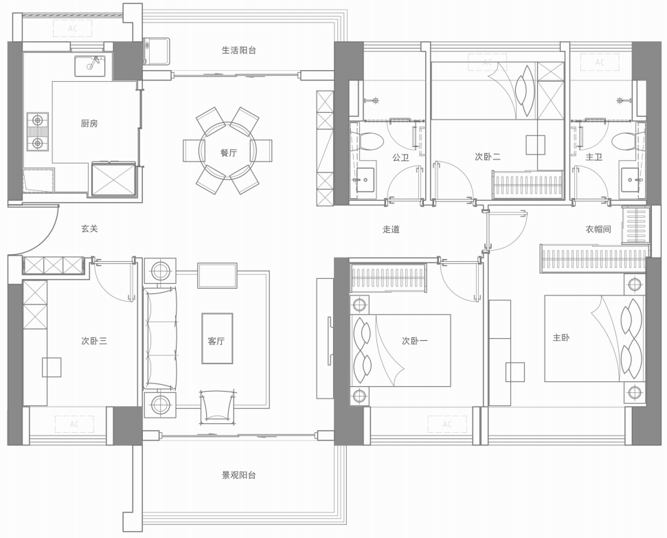
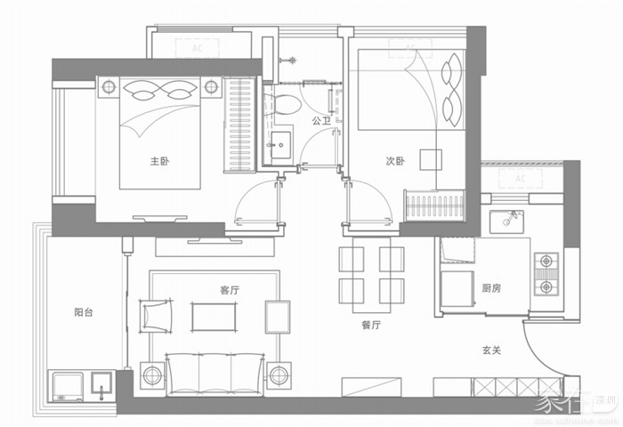
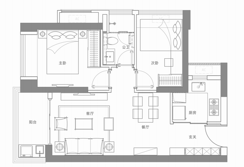
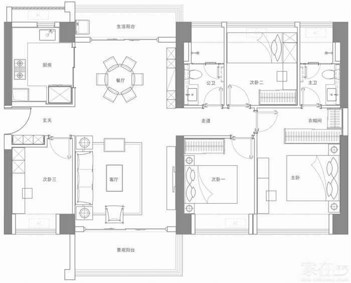
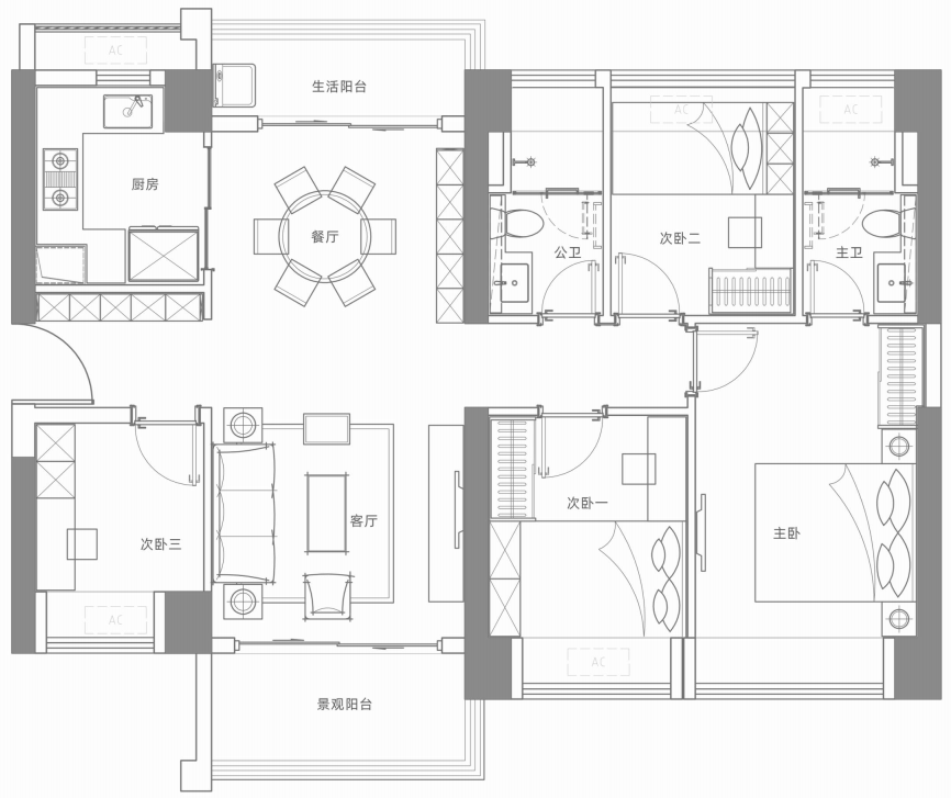
交易类型:出售发布人:经纪人区域:龙岗区 龙岗中心区小区名称:名居山河里户型:三房面积:95m²总价:--楼层:第1层 共1层朝向:东南联系人:邹生联系电话:13622310533

名居山河里 新房 享受开发商折扣 再享反佣5w-10w, 想省钱联系我




















分享
0