家在深圳,真实业主生活圈_房网论坛

0

|

3

【中介】后海!滨海之窗!194平!双层中空复式!满五!降价出售!方便看房!

小徐x
小徐x

积分:-

注册时间:-

主楼
2022-04-16 11:40:31
标签: 点击标签查看相关内容

【中介】后海!滨海之窗!194平!双层中空复式!满五!降价出售!方便看房!

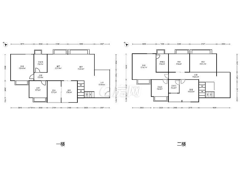
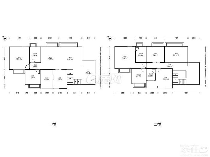
交易类型:出售发布人:经纪人区域:南山区 后海片区小区名称:滨海之窗户型:复式住宅面积:194m²总价:--楼层:第30层 共34层联系人:小徐联系电话:18927442848

诚心卖的房源,满五,价格都有空间的房源,能看房,欢迎来电或加我微信聊(18927442848小徐)





分享
0
小徐x
小徐x

积分:-

注册时间:-

沙发
2022-04-20 11:15:38
诚降的业主,不错的房源,欢迎来咨询!
小徐x
小徐x

积分:-

注册时间:-

板凳
2022-04-27 19:17:14
欢迎您的咨询:18927442848(微信同号)
小徐x
小徐x

积分:-

注册时间:-

地板
2022-04-30 20:25:32
欢迎约看:18927442848小徐
  • 插入图片

    支持一次选择9张图片上传(使用Ctrl、Shift选中);

    支持jpg、png、gif,单张图片不超过10M,png不超过1M,gif不超过300K。

    • 继续添加

  • 提到好友

3(16px)

楼主最近发表

相关帖子

    大家都在看

    下载家在深圳APP

    关注家在公众号